home page > Annunci immobiliari in Italia > Toscana > Livorno > Cecina > Negozi uffici capannoni in vendita > Scheda immobile

Negozi uffici capannoni in vendita a Cecina

COMPILA IL MODULO SOTTOSTANTE PER RICEVERE MAGGIORI INFORMAZIONI







Invia la richiesta ad altre agenzie
Accetto il trattamento dei miei dati



Toscanacasa

Piazza carducci 24-25
57023 Cecina (LI)

3457858899    0586630591

Cecina
Prezzo: € 425.000
1
343
Ultimo piano



Descrizione:
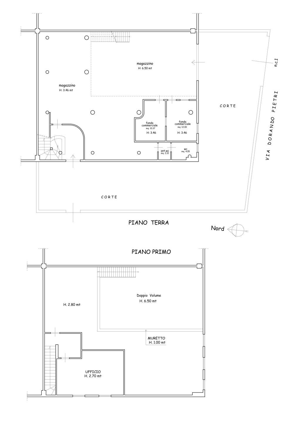
Cecina -san pietro palazziin ottima posizione commerciale/artigianale all'interno di comparto di nuova viabilità nella zona artigianale, capannone di recente costruzione composto da magazzino e due uffici oltre antibagno e bagno al piano terra , collegamento con scala interna al piano primo con altri tre vani ad usi vari, deposito, ufficio, archivio.buone condizioni generaliper motivi di privacy l'indirizzo indicato potrebbe non corrispondere alla effettiva ubicazione della proprietà classe energetica: g




Caratteristiche immobile:
Codice inserzione: 1762834417
Rif. Annuncio: PP50
Provincia: Livorno
Comune: Cecina
Zona: San Pietro in Palazzi  
Superficie (Mq) : 343 Mq.
Tipo immobile: Negozi uffici capannoni
Piano: Ultimo piano
Bagni: 1

Costi:
Prezzo € 425.000


Efficienza energetica: