Descrizione:
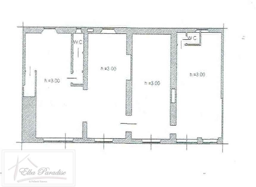
Proponiamo in vendita in esclusiva un ampio negozio nel comune di portoferraio, situato in una zona di grande passaggio e visibilità. L'immobile, con una superficie di 161 mq distribuiti su 6 vani, è l'ideale per attività commerciali e servizi. Dotato di due bagni e classificato in classe energetica g, offre un ambiente luminoso e ben strutturato, pronto per essere personalizzato secondo le esigenze del futuro acquirente. Il prezzo di vendita è di 230.000 eur, un investimento vantaggioso considerata la posizione strategica e il potenziale di sviluppo del luogo. Contattaci per maggiori informazioni e per organizzare una visita dell'immobile, saremo lieti di illustrarti tutte le caratteristiche e le potenzialità di questa interessante opportunità commerciale.portoferraio:considerato il capoluogo dell'isola d'elba, il turista che arriva è accolto dal porto turistico di portoferraio, che ospita varie compagnie navali, fondamentali per il trasporto di milioni di turisti che ogni anno sbarcano per visitare le bellezze storiche del posto e dalla bellezza della darsena medicea. Oltre ad essere il centro commerciale più grande, viene associato allo storico esilio di napoleone bonaparte che governò l'isola lasciando un ricordo indelebile. Innumerevoli sono le attrazioni che ci offre tra cui forte falcone, forte stella, villa napoleonica s. Martino, palazzina dei mulini e torre della linguella. Le principali spiagge che offre sono : le ghiaie, capobianco, padulella, cala dei frati, seccione, acquaviva, la sorgente, enfola, viticcio, il forno, scaglieri, la biodola, le viste, il grigolo, schiopparello, magazzini, ottone, ottonella. Elbaparadise immobiliare mette a disposizione per la compravendita del tuo immobile una vasta banca dati aggiornata in tempo reale con clienti selezionati ed interessati seriamente per prezzo e tipologia, senza perdite di tempo! viene effettuata una campagna pubblicitaria con annunci mirati, inseriti in spazi pubblicitari pubblicati su giornali di settore (es: secondamano, il sole 24 ore, il tirreno, viola, il firenze gratis, la repubblica, travel etc..), sui più grandi portali italiani (es: immobiliare.it, casa.it, case24, e-bay etc..) , cinema e tv ( canale 670 del digitale terrestre, telenews ), con le nostre brochure cartacee recapitate c/o posta ed aggiornate annualmente, infine sulla rete di circa 900 agenzie immobiliari italiane ed europee che collaborano con noi in trasparenza e serietà , creando cosù la possibilità reale di vendere il suo immobile in tempi celeri. Solo con noi! * per questi e tanti altri motivi, affidati a noi.. E sarai tu, il prossimo a farci la migliore pubblicità, con soddisfazione e semplicità.*elba paradise immobiliare-via r. Fucini, 14 57037 portoferraio (li) *tel/fax: + *mobile: *e-mail: *sito web: energetica: g