home page > Annunci immobiliari in Italia > Toscana > Lucca > Capannori > appartamenti in vendita > Scheda immobile

Appartamento in vendita a Capannori

COMPILA IL MODULO SOTTOSTANTE PER RICEVERE MAGGIORI INFORMAZIONI







Invia la richiesta ad altre agenzie
Accetto il trattamento dei miei dati



Sist3ma.it

Via delle ville, 493
55012 Capannori (LU)

0583920443

Capannori
Prezzo: € 150.000
1
300



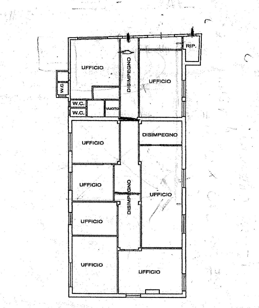
Descrizione:
Marlia, fondo da trasformare in due appartametni o da uno molto grande per un totale di 300mq. L'immobile si presta molto bene alla trasformazione, chiesto già un parere preventivo in comune. classe energetica: non applicabile




Caratteristiche immobile:
Codice inserzione: 1762819849
Rif. Annuncio: 2 app marlia 150
Provincia: Lucca
Comune: Capannori
Superficie (Mq) : 300 Mq.
Tipo immobile: Appartamento
Camere: 1

Costi:
Prezzo € 150.000


Efficienza energetica: