home page > Annunci immobiliari in Italia > Toscana > Lucca > Pietrasanta > Terreni in vendita > Scheda immobile

Terreni in vendita a Pietrasanta

COMPILA IL MODULO SOTTOSTANTE PER RICEVERE MAGGIORI INFORMAZIONI







Invia la richiesta ad altre agenzie
Accetto il trattamento dei miei dati



Agenzia immobiliare tesconi snc

Via roma, 85 - pietrasanta, marina di pietrasanta, fiumetto (lu)
55045 Pietrasanta (LU)

0584745982    Riferimenti: Marco Tesconi

Pietrasanta
Prezzo: € 190.000
1



Descrizione:
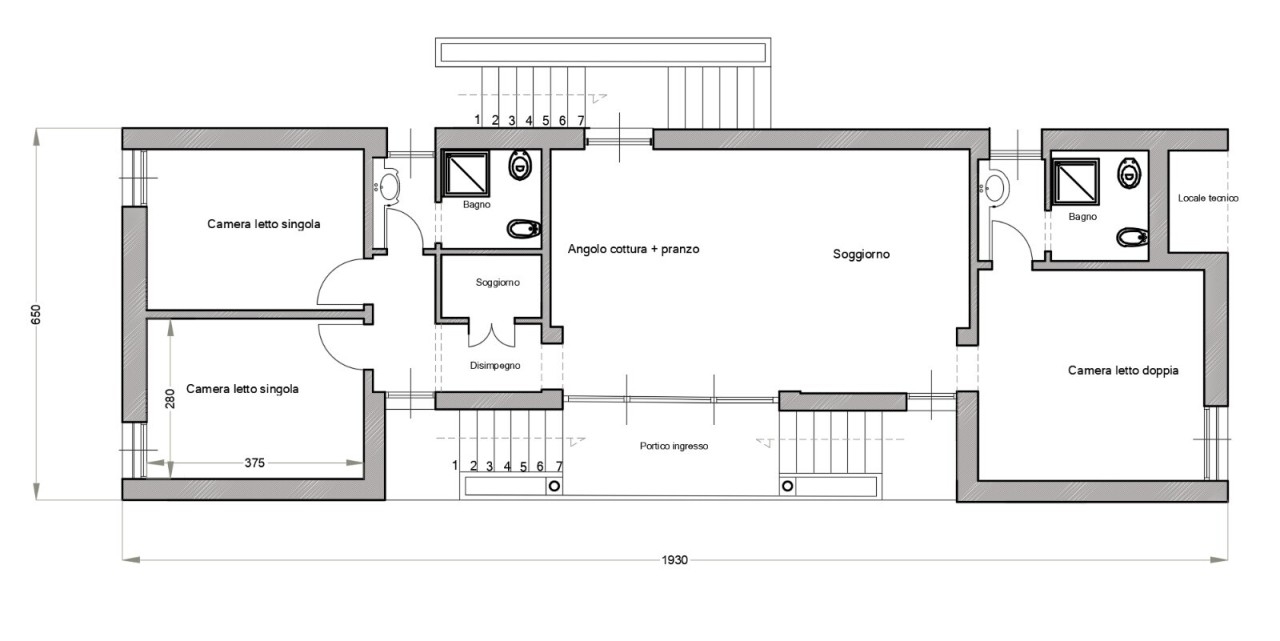
Nostra esclusiva pietrasanta: appena fuori dal centro storico, a 900 metri dalla piazza del municipio e 4,5km dal mare vendesi terreno edificabile con progetto per la costruzione di una casa singola di 107 mq lordi. Il terreno presenta una forma rettangolare regolare (16,00 m x 41,00 m), morfologia pianeggiante e accesso da tramite viabilità privata. L'analisi del progetto in pianta evidenzia l'ottima fattibilità di una villa singola di circa 107 mq lordi, sviluppata longitudinalmente (19,30 m x 6,50 m). Tale soluzione architettonica appare efficace poiché: garantisce il rispetto delle distanze dai confini nonostante la larghezza contenuta del lotto. Prevede una distribuzione funzionale con ampia zona giorno centrale, due ali dedicate alla zona notte (3 camere totali) e doppi servizi. Valorizza gli spazi esterni attraverso porticati d'ingresso e di soggiorno che integrano il fabbricato nel giardino circostante. Superficie terreno 656mq. richiesta € 190.000,00




Caratteristiche immobile:
Codice inserzione: 1770366122
Rif. Annuncio: 506
Provincia: Lucca
Comune: Pietrasanta
Zona: Marina di Pietrasanta  
Tipo immobile: Terreni
Posti auto scoperti: 1 posto auto
Tipologia giardino : Privato

Costi:
Prezzo € 190.000


Efficienza energetica: