home page > Annunci immobiliari in Italia > Toscana > Massa-Carrara > Carrara > Case e ville indipendenti in vendita > Scheda immobile

Case e ville indipendenti in vendita a Carrara

COMPILA IL MODULO SOTTOSTANTE PER RICEVERE MAGGIORI INFORMAZIONI







Invia la richiesta ad altre agenzie
Accetto il trattamento dei miei dati



Casagrande immobiliare

Via carriona, 201
54033 Carrara (MS)

3791335283    Riferimenti: Loredana Tonelli

Carrara
Prezzo: € 150.000
120



Descrizione:
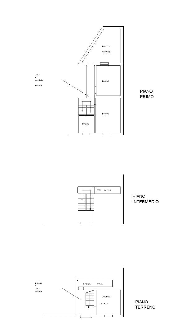
Rif: interessante uso investimento: vendesi a carrara, in zona centrale, ma fuori dal centro storico, terratetto di 143 mq con ingresso indipendente, già suddiviso in due unità immobiliari, ideale per uso investimento per locazione a studenti oppure per uso residenziale, ma in questo caso necessita di lavori di ridistribuzione degli spazi interni, data la sua attuale divisone in due subalterni. Richiesta di partenza: 150000 €




Caratteristiche immobile:
Codice inserzione: 1761267249
Rif. Annuncio: 1355352/2085/1001
Provincia: Massa-Carrara
Comune: Carrara
Superficie (Mq) : 120 Mq.
Tipo immobile: Case e ville indipendenti
Stato immobile: usato

Costi:
Prezzo € 150.000


Efficienza energetica: