home page > Annunci immobiliari in Italia > Toscana > Massa-Carrara > Carrara > Negozi uffici capannoni in vendita > Scheda immobile

Negozi uffici capannoni in vendita a Carrara

COMPILA IL MODULO SOTTOSTANTE PER RICEVERE MAGGIORI INFORMAZIONI







Invia la richiesta ad altre agenzie
Accetto il trattamento dei miei dati



Nuova domus carrara

Via verdi, 1
54033 Carrara (MS)

0585777712    0585777712    Riferimenti: Nicoletta Cordera

Carrara
Prezzo: € 39.000
G
30
Piano terra



Descrizione:
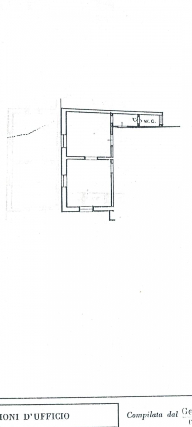
Rif: ottima opportunità di investimento nel centro di carrara! proponiamo in vendita un fondo accatastato come ' negozio' di 30 mq situato al piano terra, ideale per diverse attività commerciali. L'immobile, composto da due locali con ciascuno la propria entrata ,( quindi anche divisibili in due fondi) più bagno l'immobile in oggetto , richiede una ristrutturazione completa offrendo cosù la possibilità di personalizzarlo secondo le proprie esigenze. Prezzo interessante di 39.000 trattabili !euro. [classe energetica: g]




Caratteristiche immobile:
Codice inserzione: 1763689777
Rif. Annuncio: 1364267/571/42
Provincia: Massa-Carrara
Comune: Carrara
Superficie (Mq) : 30 Mq.
Tipo immobile: Negozi uffici capannoni
Stato immobile: usato da riattare
Piano: Piano terra

Costi:
Prezzo € 39.000


Efficienza energetica:
Classe energetica: G
Indice di prestazione energetica (EPgl): 678 kWh/mc annui