home page > Annunci immobiliari in Italia > Toscana > Pisa > Cascina > Case e ville a schiera in vendita > Scheda immobile

Case e ville a schiera in vendita a Cascina

COMPILA IL MODULO SOTTOSTANTE PER RICEVERE MAGGIORI INFORMAZIONI







Invia la richiesta ad altre agenzie
Accetto il trattamento dei miei dati



Perla immobiliare

Via pascoli, 13
56021 Cascina (PI)

050711352    Riferimenti: Riccardo Natale

Cascina
Prezzo: € 450.000
A4
3
2
140
Su più livelli
2



Descrizione:
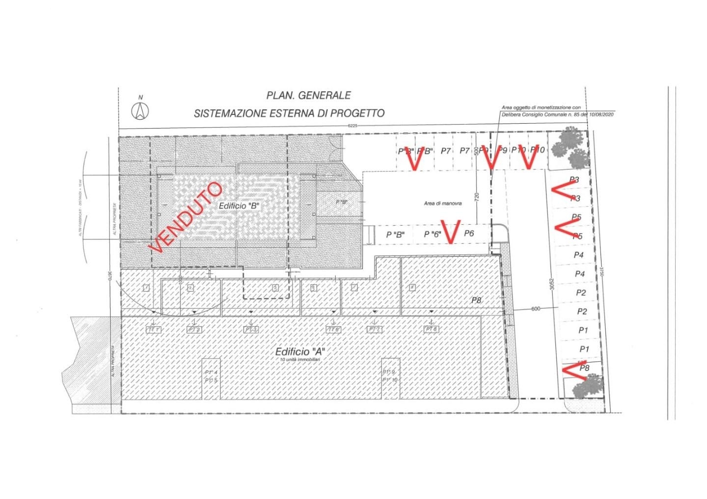
Rif: bif2 - cascina - € 450.000 nuova costruzione in classe 'a4' con impianto fotovoltaico. A pochi passi dal centro di cascina è in fase di esecuzione l'intervento di riqualificazione denominato 'la vecchia falegnameria' in cui verranno realizzate 12 unità immobiliari di tipo appartamento e villette con classe energetica garantita 'a2'. Nello specifico questa è una bifamiliare disposta su 2 livelli, composta al piano terra da ingresso in ampio soggiorno, cucina abitabile, ripostiglio, bagno e loggia; al piano primo, con accesso mediante scala interna, disimpegno notte, tre camere di cui due con accesso al terrazzo di 16 mq, due ripostigli e bagno. Completano la proprietà due posti auto esclusivi ed il giardino sui 3 lati dell'immobile di circa 110 mq. Dotato di tutte le tecnologie moderne, cappotto termico, riscaldamento a pavimento, 1,6 kw di impianto fotovoltaico, etc... . Fideiussioni sulle caparre e polizza postuma decennale. Consegna prevista settembre 2026. Classe 'a4' - rif. 7458-bif2




Caratteristiche immobile:
Codice inserzione: 1762825650
Rif. Annuncio: 1283368/31/7458-BIF2
Provincia: Pisa
Comune: Cascina
Superficie (Mq) : 140 Mq.
Tipo immobile: Case e ville a schiera
Stato immobile: nuovo
Anno costruzione/ristrutturazione: 2025
Piano: Su più livelli
Camere: 3
Posti auto scoperti: 2 posti auto
Tipologia giardino : Privato
Bagni: 2
Terrazze: 16

Costi:
Prezzo € 450.000


Efficienza energetica:
Classe energetica: A4
Indice di prestazione energetica (EPgl): 10 kWh/mq annui