home page > Annunci immobiliari in Italia > Toscana > Pisa > Cascina > appartamenti in vendita > Scheda immobile

Appartamento in vendita a Cascina

COMPILA IL MODULO SOTTOSTANTE PER RICEVERE MAGGIORI INFORMAZIONI







Invia la richiesta ad altre agenzie
Accetto il trattamento dei miei dati



Casa ubi maior srl

Via carducci, 62 - loc. La fontina
56017 San Giuliano Terme (PI)

050542382

Cascina
Prezzo: € 120.000
G
1
1
110
1



Descrizione:
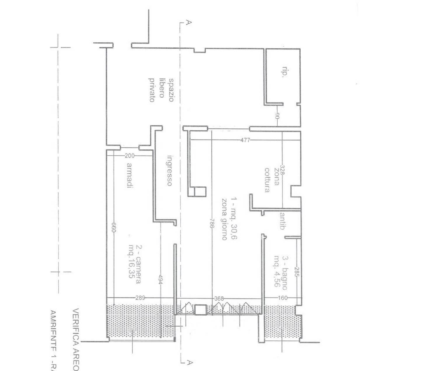
Riferimento 113111mm in vendita a cascina, nella zona del paese, proponiamo un appartamento di 110 mq situato al primo piano di un condominio servito da ascensore. Questo immobile, da ristrutturare, offre ampi spazi e una disposizione funzionale, ideale per chi desidera personalizzare la propria casa secondo i propri gusti. L'appartamento include un soggiorno doppio luminoso, una camera da letto e un cucinotto separato e il bagno. La proprietà vanta anche una cantina di 40 mq al piano seminterrato, perfetta per riporre oggetti e attrezzature. Per finire posto auto assegnato. questa è un'ottima opportunità per chi cerca un immobile da personalizzare in una posizione centrale e ben servita. Non perdere l'occasione di visitare questo appartamento e scoprire il suo potenziale! classe energetica: g




Caratteristiche immobile:
Codice inserzione: 1763093466
Rif. Annuncio: 13111MM
Provincia: Pisa
Comune: Cascina
Superficie (Mq) : 110 Mq.
Tipo immobile: Appartamento
Stato immobile: usato da riattare
Piano: 1
Camere: 1
Bagni: 1

Costi:
Prezzo € 120.000


Efficienza energetica:
Classe energetica: G