3397985235 0571479509 Riferimenti: Chiara Pistolesi
Descrizione:
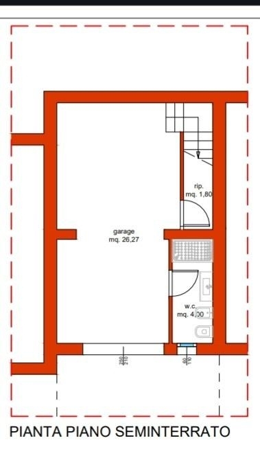
Rif: comune di castelfranco di sotto vendesi villetta terratetto a schiera indipendente centrale di recente realizzazione , nuova, in fase di completamento con giardino disposta su tre livelli e composta da ampio garage con servizio-lavanderia, e ripostiglio; zona giorno al piano terra e 2 camere e bagno al piano primo, oltre terrazzi. resede privato sul lato frontale della villetta l'iimmobile ha la possibilita' di essere completato e rifinito secondo l'esigenze del cliente. La villetta viene consegnata completamente finita al prezzo di € 210000 tratt.li
| Codice inserzione: | 1762825683 |
| Rif. Annuncio: | 1360388/143/2048 |
| Provincia: | Pisa |
| Comune: | Castelfranco di Sotto |
| Zona: | Orentano |
| Superficie (Mq) : | 140 Mq. |
| Tipo immobile: | Case e ville indipendenti |
| Stato immobile: | nuovo |
| Camere: | 2 |
| Garage: | Doppio |
| Tipologia giardino : | Privato |
| Bagni: | 2 |
| Prezzo | € 210.000 |