home page > Annunci immobiliari in Italia > Toscana > Pisa > San Miniato > Negozi uffici capannoni in affitto > Scheda immobile

Negozi uffici capannoni in affitto a San Miniato

COMPILA IL MODULO SOTTOSTANTE PER RICEVERE MAGGIORI INFORMAZIONI







Invia la richiesta ad altre agenzie
Accetto il trattamento dei miei dati



Il prisma - ag. Immobiliare

Via diaz 90, ponte a egola
56028 San Miniato (PI)

0571498840    Riferimenti: Mirko Marianelli

San Miniato
Prezzo: € 550
1
125
Piano terra



Descrizione:
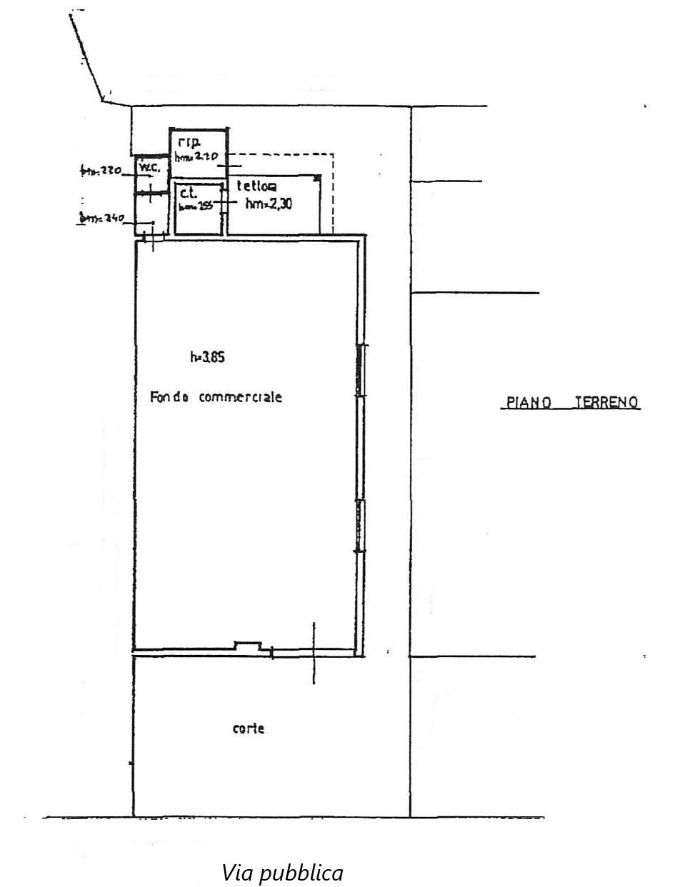
Rif.ag. 2028 - ponte a egola - san miniato - fondo commerciale in affitto di 125 mq - posto al piano piano terra di un fabbricato ubicato in zona centrale composto da unico ambiente da personalizzare, resede esterna sia frontale che tergale e 1 bagno - rif. 2028 - sc9496539




Caratteristiche immobile:
Codice inserzione: 1762914028
Rif. Annuncio: 1360546/80/2028
Provincia: Pisa
Comune: San Miniato
Superficie (Mq) : 125 Mq.
Tipo immobile: Negozi uffici capannoni
Piano: Piano terra
Bagni: 1

Costi:
Prezzo € 550


Efficienza energetica: