home page > Annunci immobiliari in Italia > Toscana > Pistoia > Montecatini-Terme > Negozi uffici capannoni in affitto > Scheda immobile

Negozi uffici capannoni in affitto a Montecatini-Terme

COMPILA IL MODULO SOTTOSTANTE PER RICEVERE MAGGIORI INFORMAZIONI







Invia la richiesta ad altre agenzie
Accetto il trattamento dei miei dati



Madida real estate

Via donizetti gaetano, 3
36100 Vicenza

04441803703    04441803708    3355382944    Riferimenti: Davide Todini

Montecatini-Terme
Prezzo: € 5.000
500



Descrizione:
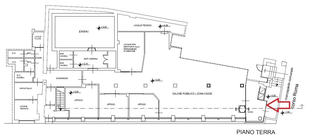
Il negozio si trova nel suggestivo centro storico, garantendo una posizione strategica e di grande visibilità. l'immobile, ha una superficie di mq. 500 distribuiti su 4 vani e 3 bagni, offre ampi spazi e possibilità di organizzazione interna flessibile. Il piano terra facilita l'accesso e la fruizione dell'area commerciale, favorendo l'interazione con la clientela. la classe energetica a3 garantisce un'ottima efficienza energetica. Possibilità di realizzazione di canna fumaria.ipotesi apertura a filo strada di vetrina con rampa accesso per disabili.o apertura fronte strada di scale pedonali frontali all'entrata negozioprendi un appuntamento con i nostri agenti via gaetano donizetti, vicenza tel o whatsapp email: energetica: 117,65 kwh/m3 a




Caratteristiche immobile:
Codice inserzione: 1762387879
Rif. Annuncio: A001828
Provincia: Pistoia
Comune: Montecatini-Terme
Superficie (Mq) : 500 Mq.
Tipo immobile: Negozi uffici capannoni

Costi:
Prezzo € 5.000


Efficienza energetica:
Indice di prestazione energetica (EPgl): 117.65 kWh/mc annui