3351898488 Riferimenti: Mailo Castagnoli
Descrizione:
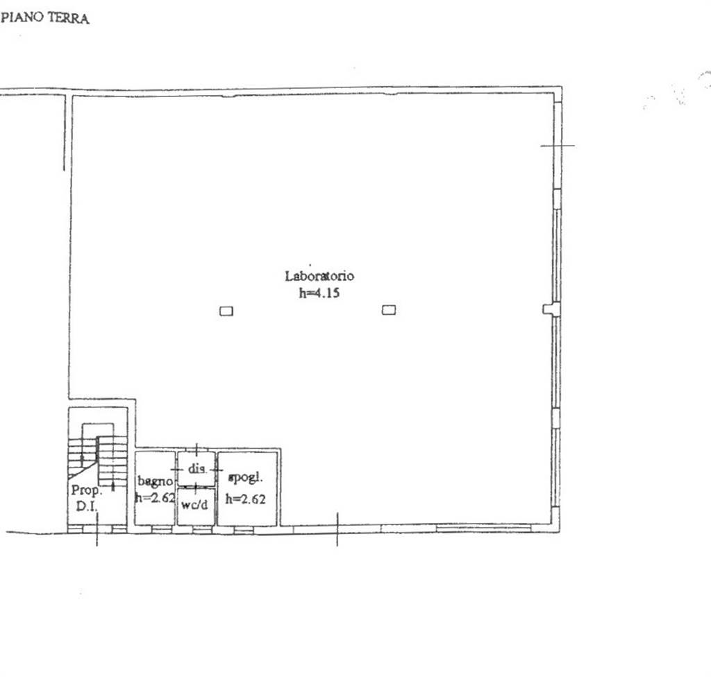
Riferimento immobile: 2075am - a quarrata proponiamo in locazione un magazzino di recente edificazione, situato in zona strategica e facilmente accessibile, ideale per attività di deposito o per semplici lavorazioni non rumorose.l'immobile, luminosissimo e ottimamente areato, si distingue per la presenza di due ingressi carrabili che agevolano le operazioni di carico e scarico anche con mezzi pesanti.caratteristiche principali:superficie interna ad uso magazzino di deposito o lavorazione leggeraaltezza interna 4,15 mt.pavimento industrialedue ingressi carrabiliampio piazzale esterno privato, perfetto per la movimentazione dei mezzispogliatoio e due servizi igieniciimmobile in ottime condizioniperfetto per aziende che necessitano di un deposito funzionale, ben collegato e pronto all'uso.gli indirizzi riportati non sono esatti ma indicativi della zona dell'immobile.per ulteriori informazioni o per fissare un appuntamento, non esitare a contattarci.chiamando il (tre tre cinque uno otto nove otto quattro otto sei), contattati l'agente immobiliare per questo immobile. Attivo anche il canale whatsapp sul solito numero. Classe energetica: e
| Codice inserzione: | 1762231834 |
| Rif. Annuncio: | 2075AM |
| Provincia: | Pistoia |
| Comune: | Quarrata |
| Superficie (Mq) : | 350 Mq. |
| Tipo immobile: | Negozi uffici capannoni |
| Stato immobile: | usato |
| Piano: | Piano terra |
| Bagni: | 2 |
| Prezzo | € 1.900 |