home page > Annunci immobiliari in Italia > Toscana > Siena > Montepulciano > appartamenti in vendita > Scheda immobile

Appartamento in vendita a Montepulciano

COMPILA IL MODULO SOTTOSTANTE PER RICEVERE MAGGIORI INFORMAZIONI







Invia la richiesta ad altre agenzie
Accetto il trattamento dei miei dati



Quimmo agency

Via galileo galilei 6
48018 Faenza (RA)

0299944698

Montepulciano
Prezzo: € 66.000
2
1
113
1



Descrizione:
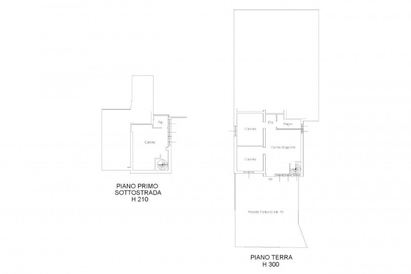
Fraz. Acquaviva. Appartamento al piano terra di un edificio residenziale composto da tre livelli fuori terra, con ripostiglio e locale cantinato al piano seminterrato con accesso diretto dall'unità immobiliare e posto auto. Risulta cosù composto: ingresso da area porticata su soggiorno/ sala da pranzo con angolo cottura, due camere da letto, disimpegno e servizi igienici; al piano seminterrato, direttamente accessibile per mezzo di scala a chiocciola posizionata nel soggiorno, vano cantinato principale e ripostiglio, entrambi finestrati. L'alloggio possiede tre differenti affacci esterni.superficie catastale appartamento mq 113superficie catastale posto auto mq 13.




Caratteristiche immobile:
Codice inserzione: 1762833415
Rif. Annuncio: 2534000
Provincia: Siena
Comune: Montepulciano
Superficie (Mq) : 113 Mq.
Tipo immobile: Appartamento
Stato immobile: usato
Camere: 2
Posti auto scoperti: 1 posto auto
Bagni: 1

Costi:
Prezzo € 66.000


Efficienza energetica: