home page > Annunci immobiliari in Italia > Trentino-Alto Adige > Trento > Pinzolo > Terreni in vendita > Scheda immobile

Terreni in vendita a Pinzolo

COMPILA IL MODULO SOTTOSTANTE PER RICEVERE MAGGIORI INFORMAZIONI







Invia la richiesta ad altre agenzie
Accetto il trattamento dei miei dati



Cerco casa in trentino srl

Via regina elena 65/a
38080 Caderzone Terme (TN)

0464514425    Riferimenti: Cerco Casa in Trentino S.r.l

Pinzolo
Prezzo: € 225.000
240



Descrizione:
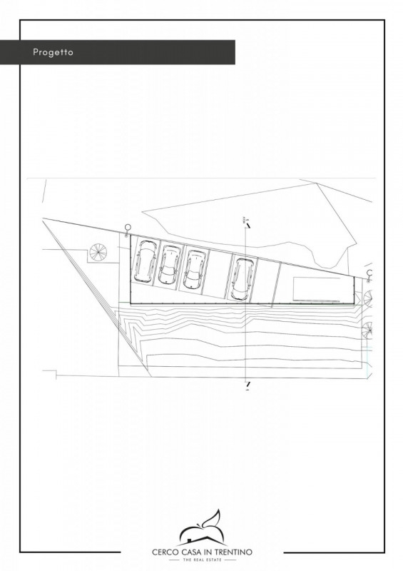
A madonna di campiglio, in una posizione strategica e comoda al centro, si propone in vendita un'area di circa 240 mq, ideale per la creazione di sette posti auto esterni. La zona è facilmente accessibile e situata a breve distanza dai principali servizi e dagli impianti di risalita, caratteristiche che rendono questa proposta particolarmente interessante sia per privati sia per investitori o strutture ricettive. L'elevata richiesta di parcheggi in località aggiunge ulteriore valore a questa opportunità. Per ulteriori informazioni contattaci allo oppure scrivici una mail a




Caratteristiche immobile:
Codice inserzione: 1763351760
Rif. Annuncio: P.11
Provincia: Trento
Comune: Pinzolo
Zona: Madonna di Campiglio  
Superficie (Mq) : 240 Mq.
Tipo immobile: Terreni

Costi:
Prezzo € 225.000


Efficienza energetica: