0464432905 0464431349 Riferimenti: Giovanni Franchini
 2
						
						2					 72
						
						72					
						
						Descrizione:
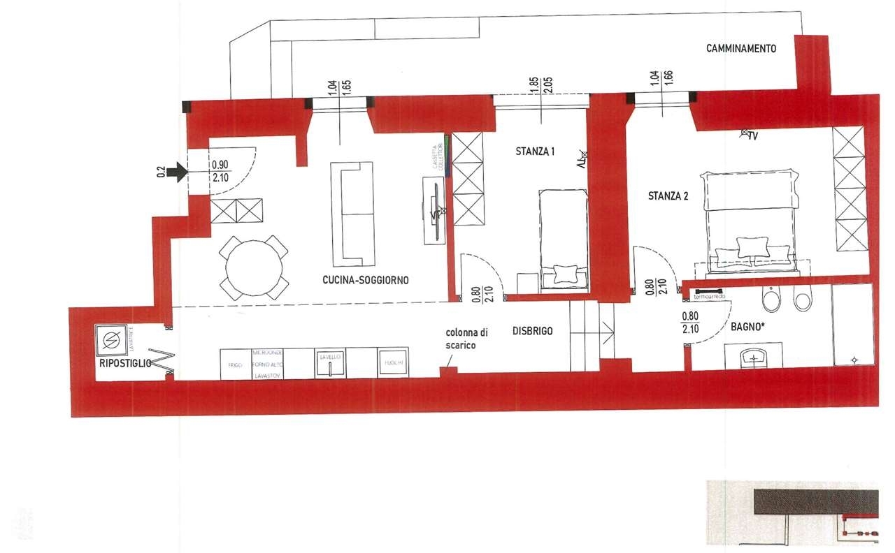
Rovereto semi centro, proponiamo in nuova realizzazione in casa clima a++ appartamento posto al piano terra, ben esposto al sole, composto da: ingresso, soggiorno cottura, due camere, bagno, disbrigo, ripostiglio, e balcone.la casa e' fornita di confort: riscaldamento a pavimento, pannelli solari, cappotto esterno, scelta finiture.consegna aprile 2026classe energetica:					
| Codice inserzione: | 1760483445 | 
| Rif. Annuncio: | V002841 | 
| Provincia: | Trento | 
| Comune: | Rovereto | 
| Superficie (Mq) : | 72 Mq. | 
| Tipo immobile: | Appartamento | 
| Camere: | 2 | 
| Prezzo | € 350.000 |