home page > Annunci immobiliari in Italia > Trentino-Alto Adige > Trento > Trento > appartamenti in vendita > Scheda immobile

Appartamento in vendita a Trento

COMPILA IL MODULO SOTTOSTANTE PER RICEVERE MAGGIORI INFORMAZIONI







Invia la richiesta ad altre agenzie
Accetto il trattamento dei miei dati



Agenzia immobiliare francesco coretti

Via milano 39
38121 Trento

0461093239    Riferimenti: Agenzia

Trento
Prezzo: € 300.000
A2
1
1
50
99



Descrizione:
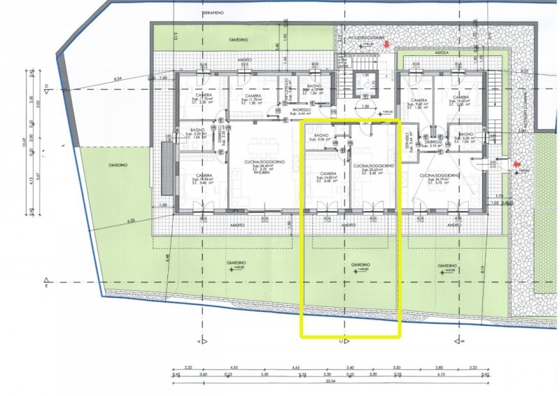
Trento, martignano, al piano terra di una palazzina in costruzione con sole 9 unità abitative, proponiamo in vendita miniappartamento in classe a+ con giardino. L'immobile si compone di ingresso su soggiorno con angolo cottura, ampia camera matrimoniale e bagno finestrato. La zona giorno affaccia su un giardino privato di circa 50mq. Completa la proprietà garage al piano interrato. Pannelli fotovoltaici. Riscaldamento a pavimento centralizzato con contachilocalorie. Consegna prevista giugno 2027.




Caratteristiche immobile:
Codice inserzione: 1760582953
Rif. Annuncio: TN01172
Provincia: Trento
Comune: Trento
Zona: Martignano  
Superficie (Mq) : 50 Mq.
Tipo immobile: Appartamento
Stato immobile: nuovo
Piano: Ultimo piano
Camere: 1
Garage: Singolo
Bagni: 1

Costi:
Prezzo € 300.000


Efficienza energetica:
Classe energetica: A2
Riscaldamento: centralizzato