home page > Annunci immobiliari in Italia > Umbria > Perugia > Gualdo Tadino > Terreni in vendita > Scheda immobile

Terreni in vendita a Gualdo Tadino

COMPILA IL MODULO SOTTOSTANTE PER RICEVERE MAGGIORI INFORMAZIONI







Invia la richiesta ad altre agenzie
Accetto il trattamento dei miei dati



Abilio s.p.a.

Via galileo galilei 6
48018 Faenza (RA)

0289741561    0546046748    0546046747    Riferimenti: Abilio S.p.A.

Gualdo Tadino
Prezzo: € 30.420
6760



Descrizione:
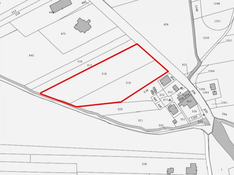
Quest'immobile viene venduto tramite asta online.vendesi terreni agricoli di 6.760 mq, siti in gualdo tadino (pg), in sp 241 snc (località fontivole), di giacitura pianeggiante, ubicati in zona di particolare interesse agricolo.trattasi di terreni pianeggianti posti in prossimità di fabbricati destinati a civili abitazioni ma nelle immediate vicinanze dell'area industriale di gualdo tadino. Il lato nord/est confina con la viabilità ordinaria che raggiunge lo snodo viario principale mentre il lato a sud/ovest confina con una modesta viabilità secondaria che conduce a terreni coltivati. Sui terreni in oggetto non vi sono fabbricati e sono liberi.superficie commerciale: 6.760,00 mqpiena proprietà di:terreni agricoli (ct): foglio 10 - particelle 318, 319quimmo.it: iniziativa tech del gruppo illimity specializzata nell'intermediazione digitale di beni immobili provenienti da tribunali, nuovi sviluppi immobiliari, financial institutions e libero mercato.da oltre 10 anni quimmo.it è il portale specializzato nella compravendita di immobili tramite asta giudiziaria. Il portale è infatti iscritto nel registro gestori della vendita telematica e nell'elenco dei siti web autorizzati allo svolgimento della pubblicità legale. Con quimmo puoi scegliere tra migliaia di immobili di ogni tipo e partecipare alle aste online per acquistare la soluzione più adatta alle tue esigenze.affidati all'esperienza decennale dei nostri esperti e richiedi l'assistenza gratuita per la presentazione e compilazione dell'offerta.contattaci subito.




Caratteristiche immobile:
Codice inserzione: 1771558611
Rif. Annuncio: 18599
Provincia: Perugia
Comune: Gualdo Tadino
Superficie (Mq) : 6760 Mq.
Tipo immobile: Terreni
Stato immobile: usato

Costi:
Prezzo € 30.420


Efficienza energetica: