Descrizione:
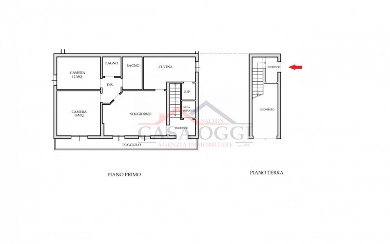
Montemerlo di cervarese s. Croce - rif.460aproponiamo in vendita in centro paese, appartamento ristrutturato nel 2013 posto al primo ed ultimo piano. L'ingresso pedonale è indipendente con splendido cancello in ferro zincato. al piano terra è presente l'ingresso al vano scala che conduce all'appartamento al piano superiore ed al garage/cantina di 11 mq.composto da: ingresso - sala impianti - soggiorno - cucina indipendente -ripostiglio/dispensa - corridoio zona notte - camera matrimoniale - seconda camera spaziosa - bagno di servizio con zona lavanderia - bagno principale - poggiolo sul lato est.l'appartamento è stato oggetto di ristrutturazione integrale con:- nuovi impianti elettrico e idraulico - realizzazione di cappotto interno in polistirene da 10 cm e in parte sul secondo solaio a livello della cucina - soletta isolante a livello del primo solaio - riscaldamento/raffrescamento con split in pompa di calore - boiler accumulo acqua calda da 250 litri circa - impianto solare termico - impianto fotovoltaico da 5,3 kw- serramenti in pvc triplo vetro di tipo basso emissivo - oscuri esterni nuovi- zanzariere - bagni rifatti a nuovo con scaldasalviette elettrici- scale in marmo biancone - porte e battiscopa bianchi - tinte interne recenti - pavimentazione in gres simil legno.possibilità di ampio parcheggio a 20 metri dall'ingresso pedonale. al piano terra è disponibile un locale commerciale in ottime condizioni di circa 160 mq (ex filiale bancaria) ad euro 79.000