home page > Annunci immobiliari in Italia > Veneto > Padova > Due Carrare > Negozi uffici capannoni in affitto > Scheda immobile

Negozi uffici capannoni in affitto a Due Carrare

COMPILA IL MODULO SOTTOSTANTE PER RICEVERE MAGGIORI INFORMAZIONI







Invia la richiesta ad altre agenzie
Accetto il trattamento dei miei dati



Tecno progetti

Viale della navigazione interna 38 - a
35121 Padova

0499818000    Riferimenti: Roberto Rovoletto Geom.

Due Carrare
Prezzo: € 9.000
1800
Ultimo piano



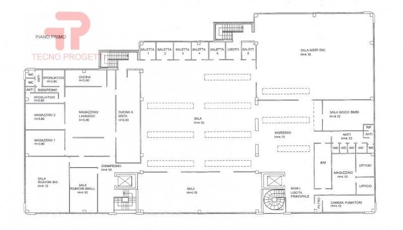
Descrizione:
Affittasi, fronte strada battaglia, immobile ad uso commerciale di mq 1.800, al primo piano di un fabbricato commerciale, dotato di 2 ingressi autonomi con ascensore e ampio spazio ad uso parcheggio per n. 150 posti auto. Prezzo € 5,00/mq/mese pari a € 9000/mese + iva. L'immobile può essere frazionato in due porzioni da mq 900 cadauna con ingresso e ascensore autonomo.




Caratteristiche immobile:
Codice inserzione: 1771558562
Rif. Annuncio: pla 460
Provincia: Padova
Comune: Due Carrare
Superficie (Mq) : 1800 Mq.
Tipo immobile: Negozi uffici capannoni
Piano: Ultimo piano

Costi:
Prezzo € 9.000


Efficienza energetica: