home page > Annunci immobiliari in Italia > Veneto > Padova > Limena > appartamenti in vendita > Scheda immobile

Appartamento in vendita a Limena

COMPILA IL MODULO SOTTOSTANTE PER RICEVERE MAGGIORI INFORMAZIONI







Invia la richiesta ad altre agenzie
Accetto il trattamento dei miei dati



Immobiliare orchidea s.r.l.

Via iv novembre 75
35035 Mestrino (PD)

0499001732    Riferimenti: Antonio Lovison

Limena
Prezzo: € 320.000
A4
3
2
141
1
1



Descrizione:
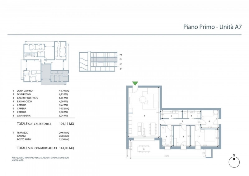
In una delle zone più ambite di limena sorge un moderno complesso residenziale di nuova costruzione, caratterizzato da linee contemporanee, spazi curati e un'atmosfera riservata. Il condominio si trova in un'area tranquilla e ricercata, comoda ai principali servizi e ottimamente collegata al centro di padova, offrendo un contesto ideale per chi desidera vivere in un ambiente organizzato, efficiente e di qualità.all'interno di questo elegante scenario si inserisce l'unità a7, un appartamento al primo piano progettato per conquistare fin dal primo sguardo grazie alla luminosità, alla funzionalità e alla sensazione di comfort.l'ingresso si apre su una zona giorno ampia e avvolta dalla luce, progettata per diventare il cuore pulsante della casa. Qui le grandi vetrate guidano lo sguardo verso ciò che rende questa abitazione davvero speciale: un terrazzo di 30 mq, un'estensione preziosa della casa dove rilassarsi al tramonto, creare un angolo verde, organizzare cene con gli amici o semplicemente respirare aria aperta in totale tranquillità.la zona notte offre una distribuzione intelligente degli spazi: una camera matrimoniale e due camere singole, tutte studiate per garantire quiete e funzionalità. Completano l'appartamento due bagni moderni, una pratica lavanderia, oltre al garage al piano interrato e un posto auto scoperto di proprietà al piano terra.sotto il profilo tecnologico, questa abitazione rappresenta lo standard più evoluto della nuova edilizia:•pompa di calore per riscaldamento, raffrescamento e acqua calda;•impianto fotovoltaico per energia pulita, con predisposizione alla ricarica dell'auto elettrica;•riscaldamento a pavimento e raffrescamento idronico;•sistema vmc per un ricambio d'aria costante e filtrato;•fibra ottica ftth ultraveloce;•classe energetica a4, zero emissioni di coâ‚‚.la nuova costruzione significa massima efficienza, costi di gestione minimi e nessun intervento da programmare. contattaci ora per fissare una visita, ti aspettiamo per mostrartelo dal vivo.vicinanza ai comuni di vigodarzere, villafranca padovana, curtarolo, piazzola sul brenta, cadoneghe, rubano, campodarsego, mestrino, campodoro, campo san martino, san giorgio delle pertiche, selvazzano dentro, vigonza, noventa padovana e padova.




Caratteristiche immobile:
Codice inserzione: 1767067296
Rif. Annuncio: A892
Provincia: Padova
Comune: Limena
Superficie (Mq) : 141 Mq.
Tipo immobile: Appartamento
Stato immobile: nuovo
Anno costruzione/ristrutturazione: 2025
Piano: 1
Camere: 3
Garage: Singolo
Posti auto scoperti: 1 posto auto
Bagni: 2 + lavanderia
Terrazze: 1

Costi:
Prezzo € 320.000


Efficienza energetica:
Classe energetica: A4
Riscaldamento: autonomo a pavimento