home page > Annunci immobiliari in Italia > Veneto > Padova > Limena > appartamenti in vendita > Scheda immobile

Appartamento in vendita a Limena

COMPILA IL MODULO SOTTOSTANTE PER RICEVERE MAGGIORI INFORMAZIONI







Invia la richiesta ad altre agenzie
Accetto il trattamento dei miei dati



Studio palladio di ugolini fabio

Via reni 6/a
35121 Padova

0498644981    Riferimenti: Fabio Ugolini

Limena
Prezzo: € 365.000
A4
3
2
166
2
1



Descrizione:
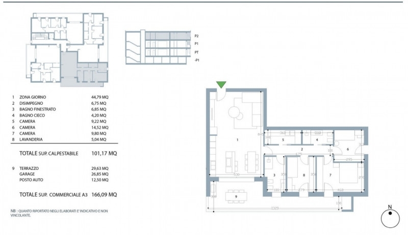
Limena, nuova edificazione in consegna per marzo 2027. Appartamento al secondo e ultimo piano. Ampia zona living di 44 mq.ca con cucina a vista, zona notte con 3 camere da letto, doppi servizi a comodo ripostiglio/lavanderia. Terrazzo di circa 29 mq. Ottime finiture di capitolato e soluzioni tecnologiche all'avanguardia. Fotovoltaico 3,5 kw.




Caratteristiche immobile:
Codice inserzione: 1770781067
Rif. Annuncio: A11_LIMENA
Provincia: Padova
Comune: Limena
Superficie (Mq) : 166 Mq.
Tipo immobile: Appartamento
Stato immobile: nuovo
Piano: 2
Camere: 3
Garage: Doppio
Posti auto scoperti: 1 posto auto
Bagni: 2
Terrazze: 1

Costi:
Prezzo € 365.000


Efficienza energetica:
Classe energetica: A4