3398168925 3398168925
Descrizione:
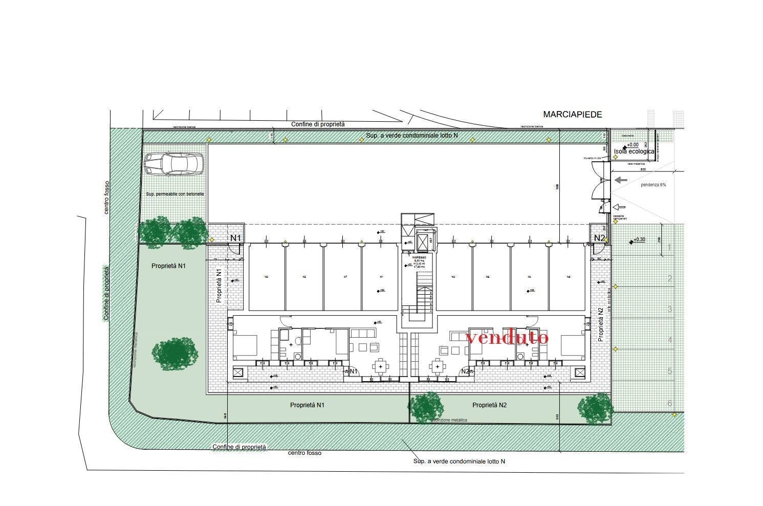
Ap2002xin vendita a maserà di padova accogliente appartamento di 70 mq situato al piano terra, ideale per chi cerca un ambiente moderno e funzionale. L'immobile è composto da tre vani ingresso con angolo cottura, disimpegno, due camere, bagno, perfetta per preparare. La classe energetica a4 garantisce un elevato livello di efficienza energetica, contribuendo a ridurre i costi di gestione.l'appartamento è dotato di riscaldamento autonomo, che consente di gestire al meglio il comfort abitativo. L'ingresso è condominiale, ma offre la privacy necessaria per godere appieno degli spazi. Completano l'offerta un box/garage di 16 mq, ideale per parcheggiare l'auto e riporre attrezzature, e un ampio giardino di 100 mq, perfetto per trascorrere momenti di relax all'aperto o per organizzare pranzi e cene con amici e familiari.questa soluzione rappresenta un'opportunità unica per chi desidera vivere in un contesto tranquillo, ma ben collegato con le principali vie di comunicazione. Non perdere l'occasione di visitare questo appartamento, ideale per famiglie o giovani coppie in cerca di un nuovo inizio. Contattaci per maggiori informazioni e per fissare un appuntamento! classe energetica: a4
| Codice inserzione: | 1767236127 |
| Rif. Annuncio: | AP2002X- |
| Provincia: | Padova |
| Comune: | Maserà di Padova |
| Superficie (Mq) : | 70 Mq. |
| Tipo immobile: | Appartamento |
| Stato immobile: | nuovo |
| Piano: | Ultimo piano |
| Camere: | 2 |
| Garage: | Singolo |
| Bagni: | 1 |
| Prezzo | € 212.000 |