0429604143 Riferimenti: Amministrazione Casapercasa
Descrizione:
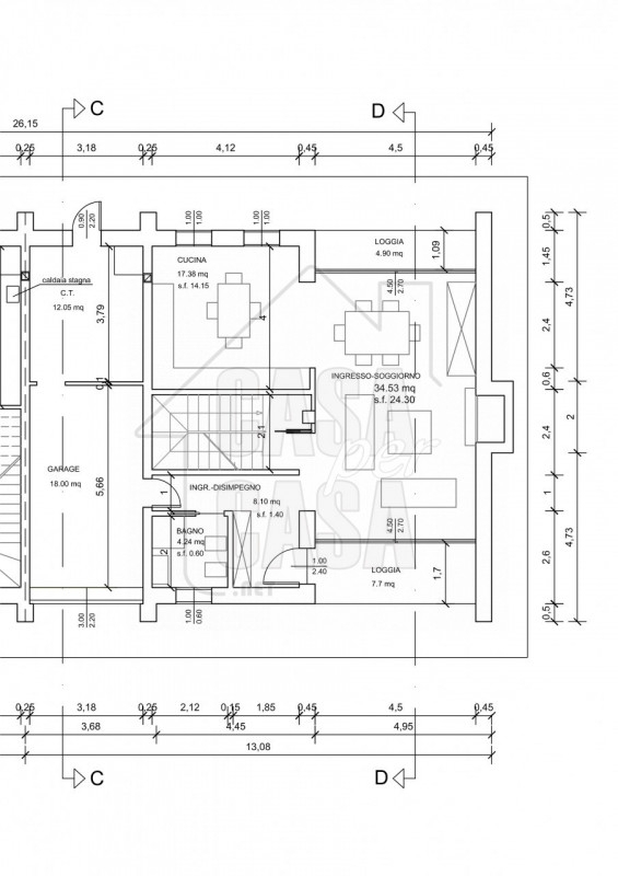
Rif. B228 in una delle zone più tranquille e ricercate di ospedaletto euganeo, precisamente nella zona di palugana, proponiamo in vendita un'ampia bifamiliare che si estende su una superficie totale di circa 180 mq. Questa soluzione è perfetta per chi cerca spazio e comfort senza rinunciare alla tranquillità.la proprietà dispone di ambienti luminosi e ben distribuiti, con ampie finestre che permettono l'ingresso della luce naturale durante tutto il giorno. Composta da un soggiorno accogliente, una cucina abitabile un bagno, una lavanderia ed il garage doppio al piano terra. Tre camere da letto di cui una matrimoniale ed un bagno al piano primo.il giardino privato offre uno spazio verde ideale per trascorrere momenti all'aperto in compagnia o semplicemente rilassarsi dopo una giornata frenetica.non lasciatevi sfuggire l'occasione di visitare questo immobile.per maggiori informazioni o per prenotare una visita contattateci presso la nostra agenzia.l'agenzia casa per casa è composta da un team di professionisti che con le competenze più specifiche vi accompagneranno nel percorso di compravendita di un immobile. La tranquillità di essere seguiti in ogni passo e di avere un riferimento per ogni problema vi affiancheranno fino al rogito. Inoltre l'agenzia è in grado di poter espletare pratiche come: valutazioni, preventivi, stime immobiliari, certificazioni energetiche, permute, successioni ect.casa per casa srl via principe umberto, 48 35042 este (pd) cell tel email:
| Codice inserzione: | 1770608358 |
| Rif. Annuncio: | B228 |
| Provincia: | Padova |
| Comune: | Ospedaletto Euganeo |
| Superficie (Mq) : | 180 Mq. |
| Tipo immobile: | Case e ville indipendenti |
| Piano: | 1 |
| Camere: | 3 |
| Garage: | Doppio |
| Posti auto scoperti: | 1 posto auto |
| Bagni: | 2 + lavanderia |
| Terrazze: | 2 |
| Prezzo | € 158.000 |