home page > Annunci immobiliari in Italia > Veneto > Padova > Pernumia > appartamenti in vendita > Scheda immobile

Appartamento in vendita a Pernumia

COMPILA IL MODULO SOTTOSTANTE PER RICEVERE MAGGIORI INFORMAZIONI







Invia la richiesta ad altre agenzie
Accetto il trattamento dei miei dati



Monselice - mito srls

Largo carpanedo 1
35043 Monselice (PD)

0429783970    Riferimenti: Mirco Toffanin

Pernumia
Prezzo: € 138.000
2
2
90
2



Descrizione:
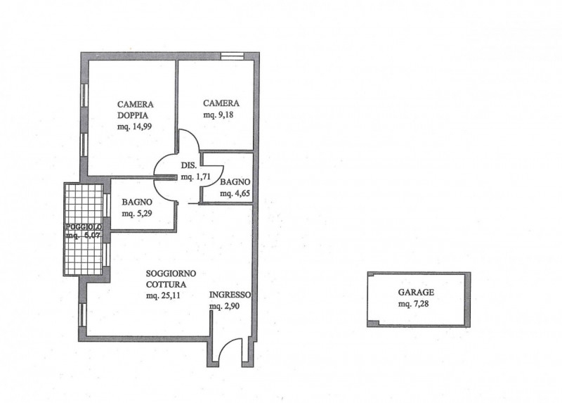
Pernumia: proponiamo un appartamento situato all'ultimo piano, con ascensore, di un edificio costruito nel 2007. L'immobile, di 90 mq, offre spazi ben distribuiti e funzionali. All'ingresso si accede a un luminoso soggiorno che si apre su un'ampia cucina, ideale per chi ama cucinare e intrattenere. La zona notte comprende due camere da letto, perfette per una famiglia o per chi desidera uno spazio aggiuntivo per ospiti o studio. Sono presenti due bagni, che garantiscono comfort e praticità. Un terrazzo offre uno spazio esterno privato, ideale per momenti di relax. L'appartamento è dotato di aria condizionata, assicurando un ambiente confortevole in ogni stagione. Completa la proprietà un garage, che offre comodità e sicurezza per il parcheggio. L'arredamento moderno è incluso nel prezzo, permettendo di entrare subito in un ambiente accogliente e ben curato.siamo abitiamo group: una rete di agenzie immobiliari in provincia di padova formata da professionisti altamente qualificati, che propone soluzioni personalizzate per la vendita, locazione, acquisto e investimento di immobili, ad albignasego, monselice e battaglia terme. Tre realtà un'unica casa!mettiamo il cliente e le sue esigenze immobiliari al centro, offrendo un servizio eccellente basato su 28 anni di esperienza e formazione nel settore. Forniamo un'esperienza di compravendita caratterizzata da professionalità, trasparenza e onestà, garantendo la massima cura e attenzione in ogni fase del processo.




Caratteristiche immobile:
Codice inserzione: 1767759741
Rif. Annuncio: 4402978
Provincia: Padova
Comune: Pernumia
Superficie (Mq) : 90 Mq.
Tipo immobile: Appartamento
Stato immobile: usato
Anno costruzione/ristrutturazione: 2007
Piano: 2
Camere: 2
Arredato:
Garage: Singolo
Bagni: 2
Terrazze: 1

Costi:
Prezzo € 138.000


Efficienza energetica:
Riscaldamento: autonomo