Descrizione:
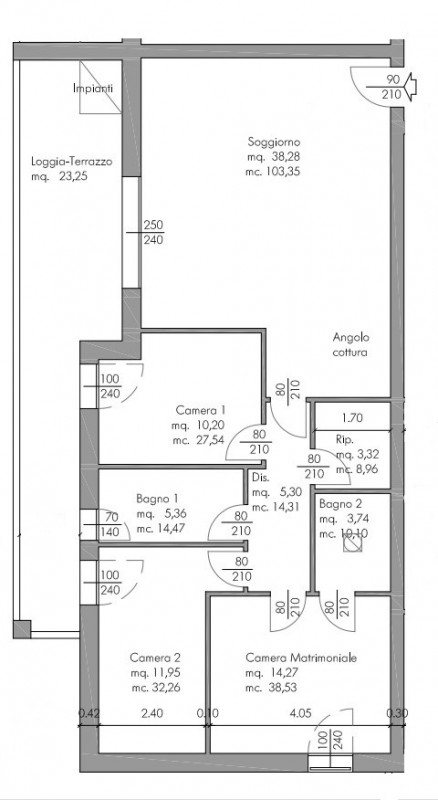
Bresseo - (rif.a582-s) - nuovo appartamento quadrilocale, pronto da abitare, situato al primo e ultimo piano a sud ovest di una moderna palazzina, questa soluzione abitativa è ideata per offrirti comfort e funzionalità.l'appartamento si compone di un luminoso soggiorno con angolo cucina, uscita nel comodo terrazzo loggia, tre camere da letto spaziose, 2 bagni oltre a un pratico ripostiglio lavanderia. Inoltre include un garage spazioso di 20 mq. E posto auto riservato.questo immobile si distingue non solo per le sue finiture interne personalizzabili ma anche per l'alta efficienza energetica; infatti è classificato nella classe a4! sarai avvantaggiato dal riscaldamento a pavimento alimentato da pompa di calore e dall'impianto fotovoltaico installato sul tetto con potenza pari a 4,5 kw. La qualità della vita qui aumenta grazie all'isolamento acustico anti calpestio del solaio ed alla ventilazione meccanica controllata (vmc).posizionato strategicamente nel centro paese permette facile accessibilità a tutti i servizi principali: negozi, scuole e mezzi pubblici sono raggiungibili facilmente. Non perdere l'occasione unica d'acquistare questa residenza contemporanea!contattaci oggi stesso presso la nostra agenzia referenziata per maggiori informazioni o per prenotare una visita!chiamaci per avere ulteriori informazioni o per fissare un appuntamento: agenzia immobiliare myhomegroup - via padova 12/e, 35030 selvazzano dentro - pd - tel vendere per comprare? nessun problema, ci pensiamo noi!vuoi acquistare la tua nuova casa ma hai bisogno di vendere prima? my home group ti offre un servizio completo per la vendita del tuo immobile, aiutandoti a ottenere il massimo valore in tempi rapidi.valutazione gratuita e senza impegnoscopri quanto vale la tua casa!prenota subito una valutazione gratuita con i nostri esperti.https:// una valutazioneaffidati a noi per una gestione semplice e professionale della vendita del tuo immobile!l'agenzia myhomegroup di selvazzano dentro, copre le zone di tencarola, caselle, san domenico, feriole, abano terme, montegrotto, saccolongo, teolo, torreglia, cervarese santa croce, mestrino, rubano, padova.