home page > Annunci immobiliari in Italia > Veneto > Venezia > Mira > Case e ville a schiera in vendita > Scheda immobile

Case e ville a schiera in vendita a Mira

COMPILA IL MODULO SOTTOSTANTE PER RICEVERE MAGGIORI INFORMAZIONI







Invia la richiesta ad altre agenzie
Accetto il trattamento dei miei dati



Asteaffari.com

Viale g. E l. Olivi 38
31100 Treviso

04221781118    Riferimenti: Stefano Dalto

Mira
Prezzo: € 50.342
F
2
1
146
1



Descrizione:
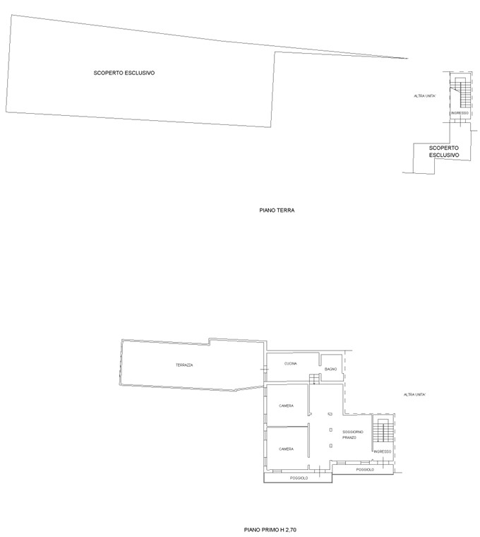
Rif. A.a.348-241vendita all'asta - appartamento con garage in data 24 aprile 2026descrizione: trattasi di un appartamento posto al piano terra (ingresso con vano scale indipendente) e primo, di un immobile sito nel comune di mira (ve). L'unità immobiliare, della superficie complessiva di mq.146, è composta da ingresso con vano scala al piano terra, pranzo - soggiorno, due camere, disimpegno, cucina, bagno, due terrazzi a est, un grande terrazzo a sud sopra i locali garage. Garage. Quota per 1/2 area scoperta urbana.l'immobile viene venduto tramite asta giudiziaria, ed il prezzo indicato si riferisce al prezzo minimo accettato per la partecipazione all'asta .aste-affari fornisce un servizio di assistenza e consulenza tecnica , legale, fiscale e finanziaria su acquisti all'asta e affari immobiliari , al fine di rendere più facile e sicuro l'acquisto di un immobile proveniente dal mercato giudiziario oppure da occasioni presenti sul mercato immobiliare . analisi di fattibilità , tecnica, burocratica, finanziaria , legale , esame problematiche e vincoli , conteggio costi accessori ed occulti, assistenza in tutte le fasi della procedura fino alla consegna delle chiavi dell'immobile .l'acquisto può essere finanziato tramite mutuo , e , ove possibile , anche in pre-asta tramite procedura di saldo-stralcio .soluzioni personalizzate per i debitori .prezzo minimo base asta : euro 50.342,00per info aggiuntive , prenotazione visione, consulenza ed assistenza studio di consulenza : 'aste-affari.com'info :




Caratteristiche immobile:
Codice inserzione: 1770954044
Rif. Annuncio: A.A. 348-241
Provincia: Venezia
Comune: Mira
Zona: Dogaletto  
Superficie (Mq) : 146 Mq.
Tipo immobile: Case e ville a schiera
Anno costruzione/ristrutturazione: 1967
Piano: 1
Camere: 2
Arredato:
Garage: Singolo
Bagni: 1
Terrazze: 3

Costi:
Prezzo € 50.342


Efficienza energetica:
Classe energetica: F
Riscaldamento: autonomo