home page > Annunci immobiliari in Italia > Veneto > Venezia > Noventa di Piave > Case e ville indipendenti in vendita > Scheda immobile

Case e ville indipendenti in vendita a Noventa di Piave

COMPILA IL MODULO SOTTOSTANTE PER RICEVERE MAGGIORI INFORMAZIONI







Invia la richiesta ad altre agenzie
Accetto il trattamento dei miei dati



Asteaffari.com

Viale g. E l. Olivi 38
31100 Treviso

04221781118    Riferimenti: Stefano Dalto

Noventa di Piave
Prezzo: € 167.157
F
1033
1
1



Descrizione:
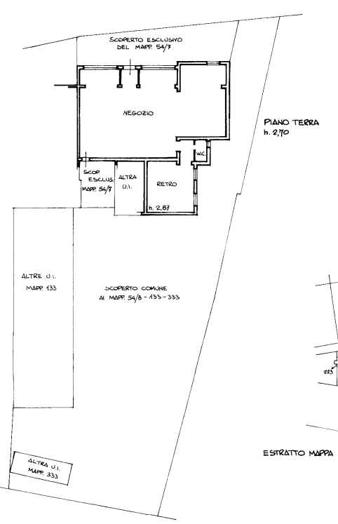
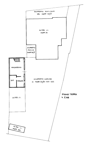
Rif. A.a.72-25vendita all'asta - complesso residenziale da ristrutturare in data 19 marzo 2026descrizione: trattasi di un ampio complesso edilizio in stato di abbandono e pericolante facente parte di piano di recupero volto alla realizzazione di n. 8 unita abitative suddivise in 4 bifamiliari, sito nel comune di dolo (ve). Nello specifico il più ampio complesso edilizio risulta costituito da 13 unità immobiliari suddivise in più edifici pericolanti posti in adiacenza uno con l'altro. Superficie complessiva mq.1033.l'immobile viene venduto tramite asta giudiziaria, ed il prezzo indicato si riferisce al prezzo minimo accettato per la partecipazione all'asta.aste-affari fornisce un servizio di assistenza e consulenza tecnica, legale, fiscale e finanziaria su acquisti all'asta e affari immobiliari, al fine di rendere più facile e sicuro l'acquisto di un immobile proveniente dal mercato giudiziario oppure da occasioni presenti sul mercato immobiliare.analisi di fattibilità, tecnica, burocratica, finanziaria, legale, esame problematiche e vincoli, conteggio costi accessori ed occulti, assistenza in tutte le fasi della procedura fino alla consegna delle chiavi dell'immobile.l'acquisto può essere finanziato tramite mutuo, e, ove possibile anche in pre-asta tramite procedura di saldo-stralcio.prezzo minimo base asta : da euro 167.157,00per info aggiuntive, prenotazione visione, consulenza ed assistenza su asta :studio di consulenza : 'aste-affari.com'info: un debitore ? chiamaci ! abbiamo soluzioni personalizzate anche per te.




Caratteristiche immobile:
Codice inserzione: 1771558652
Rif. Annuncio: A.A. 72-25
Provincia: Venezia
Comune: Noventa di Piave
Superficie (Mq) : 1033 Mq.
Tipo immobile: Case e ville indipendenti
Stato immobile: usato da riattare
Anno costruzione/ristrutturazione: 1977
Piano: 1
Posti auto scoperti: 1 posto auto
Tipologia giardino : Condominiale

Costi:
Prezzo € 167.157


Efficienza energetica:
Classe energetica: F
Riscaldamento: autonomo