home page > Annunci immobiliari in Italia > Veneto > Venezia > Santo Stino di Livenza > Case e ville indipendenti in vendita > Scheda immobile

Case e ville indipendenti in vendita a Santo Stino di Livenza

COMPILA IL MODULO SOTTOSTANTE PER RICEVERE MAGGIORI INFORMAZIONI







Invia la richiesta ad altre agenzie
Accetto il trattamento dei miei dati



Asteaffari.com

Viale g. E l. Olivi 38
31100 Treviso

04221781118    Riferimenti: Stefano Dalto

Santo Stino di Livenza
Prezzo: € 54.959
F
4
2
213
2
1



Descrizione:
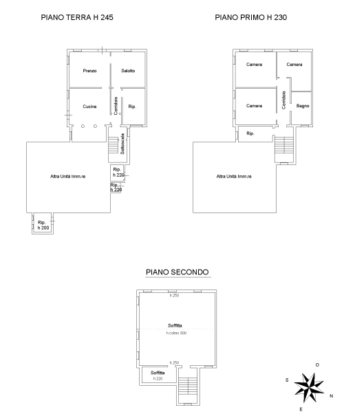
Rif. A.a vendita all'asta - fabbricato rurale su 3 livelli in data 01 aprile 2026descrizione: trattasi di un fabbricato residenziale rurale disposto su 3 livelli, sito nel comune di san stino di livenza (ve). L'unità immobiliare, della superficie complessiva di mq.213 ca., è composta al piano terra da zona giorno, bagno, camera, vano scale, 3 vani accessori con accesso esterno; al piano primo da zona notte, 3 camere, disimpegno, ripostiglio, bagno; il piano secondo è destinato a soffitta ad uso granaio. Completano la proprietà un fabbricato agricolo a due piani e due accessori ad uso agricolo in corpo staccato. L'area di base è di pertinenza degli edifici.l'immobile viene venduto tramite asta giudiziaria, ed il prezzo indicato si riferisce al prezzo minimo accettato per la partecipazione all'asta.aste-affari fornisce un servizio di assistenza e consulenza tecnica, legale, fiscale e finanziaria su acquisti all'asta e affari immobiliari, al fine di rendere più facile e sicuro l'acquisto di un immobile proveniente dal mercato giudiziario oppure da occasioni presenti sul mercato immobiliare.analisi di fattibilità, tecnica, burocratica, finanziaria, legale, esame problematiche e vincoli, conteggio costi accessori ed occulti, assistenza in tutte le fasi della procedura fino alla consegna delle chiavi dell'immobile.l'acquisto può essere finanziato tramite mutuo, e, ove possibile anche in pre-asta tramite procedura di saldo-stralcio. prezzo minimo base asta : da euro 54.959,00 per info aggiuntive, prenotazione visione, consulenza ed assistenza su asta :studio di consulenza : 'aste-affari.com'info: un debitore ? chiamaci ! abbiamo soluzioni personalizzate!




Caratteristiche immobile:
Codice inserzione: 1770695351
Rif. Annuncio: A.A. 2870-241
Provincia: Venezia
Comune: Santo Stino di Livenza
Superficie (Mq) : 213 Mq.
Tipo immobile: Case e ville indipendenti
Anno costruzione/ristrutturazione: 1983
Piano: 2
Camere: 4
Arredato:
Posti auto scoperti: 1 posto auto
Bagni: 2

Costi:
Prezzo € 54.959


Efficienza energetica:
Classe energetica: F
Riscaldamento: autonomo