home page > Annunci immobiliari in Italia > Veneto > Venezia > Vigonovo > appartamenti in vendita > Scheda immobile

Appartamento in vendita a Vigonovo

COMPILA IL MODULO SOTTOSTANTE PER RICEVERE MAGGIORI INFORMAZIONI







Invia la richiesta ad altre agenzie
Accetto il trattamento dei miei dati



Giardini immobiliare di giraldo marialetizia

Via voltabarozzo 13
35121 Padova

3489256528    Riferimenti: MariaLetizia Giraldo

Vigonovo
Prezzo: € 275.000
A4
3
2
136
1
1



Descrizione:
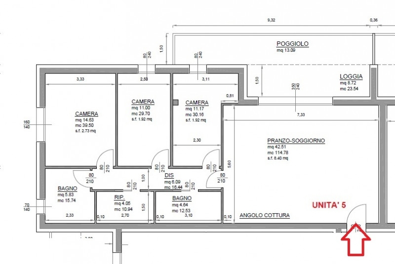
Scopri un'opportunità imperdibile nel nuovo quartiere residenziale di tombelle, situato nel comune di vigonovo. Questa zona è perfettamente collegata ai principali servizi e trasporti, rendendo la vita quotidiana comoda e accessibile. Proponiamo in vendita un prestigioso appartamento quadrilocale di ben 136 mq all'interno di una palazzina moderna composta da sole 10 unità.l'appartamento si trova al primo piano ed è caratterizzato da un'ampia zona giorno open-space che offre luminosità e comfort. è composto da tre camere spaziose, doppi servizi, ripostiglio funzionale e una terrazza esclusiva di 22 mq ideale per momenti all'aperto o cene estive con amici e familiari.la proprietà vanta elevate prestazioni energetiche grazie alla classe energetica a4. Gli interni sono rifiniti con materiali pregiati: i pavimenti della zona giorno, dei bagni e dei ripostigli sono realizzati in gres porcellanato; mentre nella zona notte troviamo eleganti listoni in legno prefinito con anima in rovere. Le porte interne bianche conferiscono uno stile moderno agli ambienti.le finestre e portefinestre in legno grigio dotate d'apertura anta-ribalta garantiscono ottima illuminazione naturale oltre a isolamento acustico.tra le caratteristiche distintive dell'immobile ci sono l'impianto vmc completo che assicura qualità dell'aria interna, il riscaldamento autonomo mediante pompa di calore per acqua calda sanitaria e climatizzazione idronica supportata da due split dedicati all'appartamento stesso. Il sistema fotovoltaico da 4 kw fornisce energia pulita contribuendo ulteriormente al risparmio energetico.in aggiunta, l'immobile è predisposto per impianto d'allarme ed è fornito di tapparelle motorizzate coibentate per una maggiore sicurezza ed efficienza termica; il garage singolo ha basculante motorizzato facilitando l'accesso dal parcheggio privato, è compreso un posto auto all'interno della proprietà.costo per allacciamenti ed accatastamenti € 2.500,00non perdere questa occasione unica! contatta subito la nostra agenzia per maggiori informazioni o per organizzare una visita.




Caratteristiche immobile:
Codice inserzione: 1766635907
Rif. Annuncio: 3010
Provincia: Venezia
Comune: Vigonovo
Zona: Tombelle  
Superficie (Mq) : 136 Mq.
Tipo immobile: Appartamento
Stato immobile: nuovo
Anno costruzione/ristrutturazione: 2024
Piano: 1
Camere: 3
Garage: Singolo
Posti auto scoperti: 1 posto auto
Bagni: 2
Terrazze: 1

Costi:
Prezzo € 275.000


Efficienza energetica:
Classe energetica: A4
Riscaldamento: autonomo a pavimento