Descrizione:
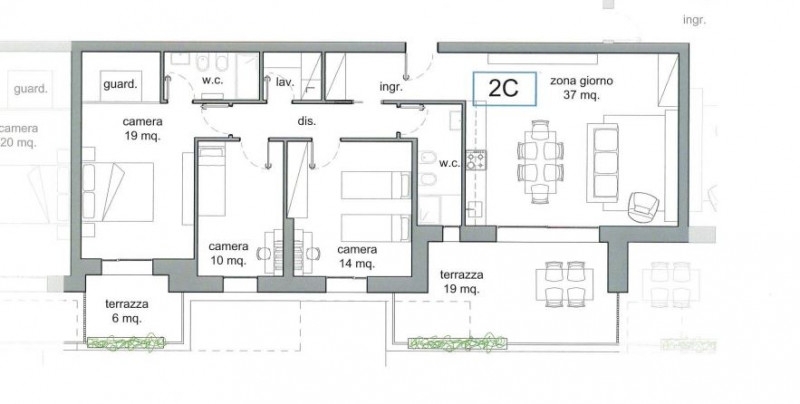
Stai cercando una soluzione in pronta consegna nuova in classe energetica a4, comoda al centro di valdagno?residence regina margherita: ultime unita' disponibili !!!!approfitta ora di un incredibile bonus fiscale fino a € 48.000 da godere in soli 10 anni!dopo il grande successo della prima parte del progetto con 18 unità vendute su 21, proseguono i lavori del palazzo b, che prevede la realizzazione di sole 7 unità abitative.un progetto esclusivo nel cuore di valdagno, realizzato per offrire elevati standard qualitativi, eleganza nei dettagli e alto comfort abitativo.palazzo a: ultime 2 unita' disponibili;palazzo b: ultime 4 unita' disponibili;non farti scappare questa opportunita'chiama subito al e prenota il tua futura casa in classe a4residence regina margherita palazzo a:nuovo tricamere, situato al secondo piano composto da luminosa zona giorno con cucina in open-space e accesso al terrazzo abitabile, tre camere da letto, comoda lavanderia, doppi servizi e box auto doppio.euro 275.000 comprensivo di garage.la casa del futuro l'abbiamo immaginata cosù:- full elettric, zero gas;- fotovoltaico privato;- ampia zona giorno open space;- terrazzo abitabile coperto;- camera padronale con bagno privato, cabina armadio e terrazzo;- altre due spaziose camere;- comoda lavanderia;- doppi servizi;- riscaldamento a pavimento;- pompa di calore privata;- tapparelle motorizzate;- climatizzatore già incluso;- comodo garage doppio motorizzato al piano terra.vicenza costruzioni coglie l'occasione per ringraziare per la fiducia le 21 famiglie che hanno già scelto di acquistare la loro futura casa in regina margherita.chiama ora allo e prenota il tuo futuro appartamento in classe a4.info