home page > Annunci immobiliari in Italia > Veneto > Treviso > Breda di Piave > Negozi uffici capannoni in vendita > Scheda immobile

Negozi uffici capannoni in vendita a Breda di Piave

COMPILA IL MODULO SOTTOSTANTE PER RICEVERE MAGGIORI INFORMAZIONI







Invia la richiesta ad altre agenzie
Accetto il trattamento dei miei dati



Asteaffari.com

Viale g. E l. Olivi 38
31100 Treviso

04221781118    Riferimenti: Stefano Dalto

Breda di Piave
Prezzo: € 42.750
F
2
87
Piano terra
1



Descrizione:
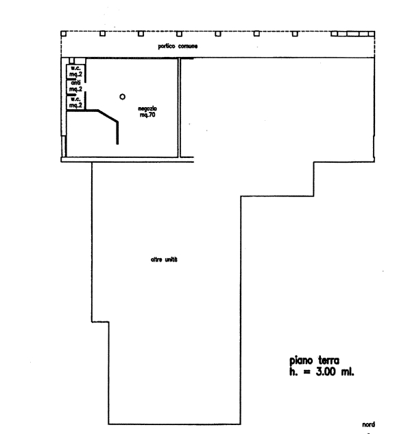
Rif. A.a.280-232vendita all'asta - negozio al piano terra in data 15 aprile 2026descrizione: trattasi di un immobile a destinazione commerciale, ubicato al piano terra del condominio 'la sorgente' sito nel comune di breda di piave (tv) località saletto. L'unità, della superficie commerciale di mq.87, ospita un ampio vano, un retro negozio con porta secondaria di uscita verso l'area scoperta condominiale, un locale servizi igienici costituito dall'antibagno e da due wc. Sul retro del fabbricato, su area condominiale recintata e raggiungibile superati l'accesso carraio condominiale e/o quello pedonale, sono presenti i tre posti auto scoperti delimitati da segnaletica orizzontale; tale area risulta pavimentata con betonelle.prezzo minimo base asta : da euro 42.750,00l'immobile viene venduto tramite asta giudiziaria, ed il prezzo indicato si riferisce al prezzo minimo accettato per la partecipazione all'asta.aste-affari fornisce un servizio di assistenza e consulenza tecnica, legale, fiscale e finanziaria su acquisti all'asta e affari immobiliari, al fine di rendere più facile e sicuro l'acquisto di un immobile proveniente dal mercato giudiziario oppure da occasioni presenti sul mercato immobiliare.analisi di fattibilità, tecnica, burocratica, finanziaria, legale, esame problematiche e vincoli, conteggio costi accessori ed occulti, assistenza in tutte le fasi della procedura fino alla consegna delle chiavi dell'immobile.l'acquisto può essere finanziato tramite mutuo, e, ove possibile anche in pre-asta tramite procedura di saldo-stralcio. per info aggiuntive, prenotazione visione, consulenza ed assistenza su asta : studio di consulenza : 'aste-affari.com' info: sei un debitore ? chiamaci ! abbiamo soluzioni personalizzate anche per te.




Caratteristiche immobile:
Codice inserzione: 1770608855
Rif. Annuncio: A.A. 280-232
Provincia: Treviso
Comune: Breda di Piave
Zona: Saletto  
Superficie (Mq) : 87 Mq.
Tipo immobile: Negozi uffici capannoni
Stato immobile: usato
Anno costruzione/ristrutturazione: 2001
Piano: Piano terra
Arredato:
Posti auto scoperti: 1 posto auto
Tipologia giardino : Condominiale
Bagni: 2

Costi:
Prezzo € 42.750


Efficienza energetica:
Classe energetica: F
Riscaldamento: autonomo