home page > Annunci immobiliari in Italia > Veneto > Treviso > Castelfranco Veneto > Negozi uffici capannoni in vendita > Scheda immobile

Negozi uffici capannoni in vendita a Castelfranco Veneto

COMPILA IL MODULO SOTTOSTANTE PER RICEVERE MAGGIORI INFORMAZIONI







Invia la richiesta ad altre agenzie
Accetto il trattamento dei miei dati



Berno immobiliare

Via delle mimose 2/a
31033 Castelfranco Veneto (TV)

04231840123    Riferimenti: Maurizio Berno

Castelfranco Veneto
Prezzo: € 150.000
F
2
2
180
Piano terra



Descrizione:
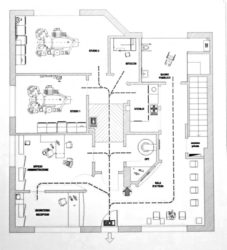
Locale commerciale ad uso direzionale, attualmente locato a studio dentistico, fronte strada, di mq 115 a piano terra più mq 65 nell'interrato, 6 vetrine, 2 bagni, riscaldamento autonomo.ampio parcheggio.locato a 1.000 euro al mese




Caratteristiche immobile:
Codice inserzione: 1766549353
Rif. Annuncio: MBFC1
Provincia: Treviso
Comune: Castelfranco Veneto
Superficie (Mq) : 180 Mq.
Tipo immobile: Negozi uffici capannoni
Stato immobile: usato
Anno costruzione/ristrutturazione: 1987
Piano: Piano terra
Camere: 2
Bagni: 2

Costi:
Prezzo € 150.000


Efficienza energetica:
Classe energetica: F
Indice di prestazione energetica (EPgl): 437.83 kWh/mc annui
Riscaldamento: autonomo