home page > Annunci immobiliari in Italia > Veneto > Treviso > Godega di Sant'Urbano > Negozi uffici capannoni in vendita > Scheda immobile

Negozi uffici capannoni in vendita a Godega di Sant'Urbano

COMPILA IL MODULO SOTTOSTANTE PER RICEVERE MAGGIORI INFORMAZIONI







Invia la richiesta ad altre agenzie
Accetto il trattamento dei miei dati



C'? casa

Via piave, 3
33077 Sacile (PN)

3925268933    392 - 5268933    Riferimenti: Barbara Pizzinat

Godega di Sant'Urbano
Prezzo: € 130.000
G
234



Descrizione:
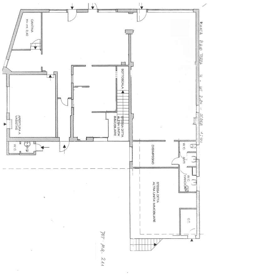
Negozio di oltre 200 mq su strada di intenso passaggio, divisibile in più locali perchè dotato di 3 ingressi, adatto per diverse attività commerciali.classe energetica: g 82,27 kwh/m3 a




Caratteristiche immobile:
Codice inserzione: 1770682318
Rif. Annuncio: V000280
Provincia: Treviso
Comune: Godega di Sant'Urbano
Superficie (Mq) : 234 Mq.
Tipo immobile: Negozi uffici capannoni

Costi:
Prezzo € 130.000


Efficienza energetica:
Classe energetica: G
Indice di prestazione energetica (EPgl): 82.27 kWh/mc annui