home page > Annunci immobiliari in Italia > Veneto > Treviso > Mogliano Veneto > appartamenti in vendita > Scheda immobile

Appartamento in vendita a Mogliano Veneto

COMPILA IL MODULO SOTTOSTANTE PER RICEVERE MAGGIORI INFORMAZIONI







Invia la richiesta ad altre agenzie
Accetto il trattamento dei miei dati



Asteaffari.com

Viale g. E l. Olivi 38
31100 Treviso

04221781118    Riferimenti: Stefano Dalto

Mogliano Veneto
Prezzo: € 105.225
E
2
2
104
Piano terra
1



Descrizione:
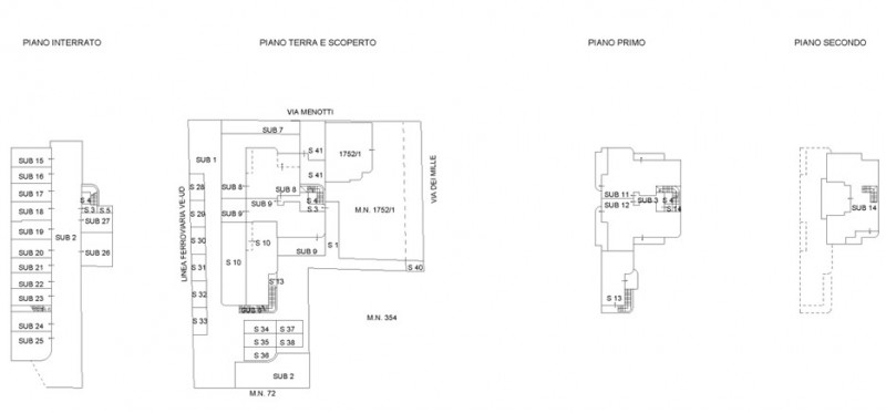
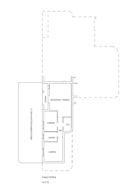
Rif. A.a.71-24vendita all'asta - appartamento al piano terra con garage in data 4 novembre 2025descrizione: trattasi di un appartamento trilocale posto al piano terra con garage al piano interrato facente parte di un fabbricato condominiale denominato 'condominio anita' sito nel comune di mogliano veneto (tv). L'unità immobiliare, della superficie commerciale complessiva di mq. 104, è composta da soggiorno con angolo cottura preceduto da una loggia, due camere, due servizi igienici e disimpegno distributivo. L'accesso avviene tramite cancello pedonale autonomo posto nella recinzione che delimita l'area scoperta esclusiva. Completano la proprietà un'autorimessa al piano interrato, accessibile da rampa comune, e due posti auto scoperti al piano terra.l'immobile viene venduto tramite asta giudiziaria, ed il prezzo indicato si riferisce al prezzo minimo accettato per la partecipazione all'asta.aste-affari fornisce un servizio di assistenza e consulenza tecnica, legale, fiscale e finanziaria su acquisti all'asta e affari immobiliari, al fine di rendere più facile e sicuro l'acquisto di un immobile proveniente dal mercato giudiziario oppure da occasioni presenti sul mercato immobiliare.analisi di fattibilità, tecnica, burocratica, finanziaria, legale, esame problematiche e vincoli, conteggio costi accessori ed occulti, assistenza in tutte le fasi della procedura fino alla consegna delle chiavi dell'immobile.l'acquisto può essere finanziato tramite mutuo, e, ove possibile anche in pre-asta tramite procedura di saldo-stralcio.prezzo minimo base asta : da euro 105.225,00per info aggiuntive, prenotazione visione, consulenza ed assistenza su asta :studio di consulenza : 'aste-affari.com'info: un debitore ? chiamaci ! abbiamo soluzioni personalizzate anche per te.




Caratteristiche immobile:
Codice inserzione: 1759114157
Rif. Annuncio: A.A. 71-24
Provincia: Treviso
Comune: Mogliano Veneto
Superficie (Mq) : 104 Mq.
Tipo immobile: Appartamento
Stato immobile: usato
Anno costruzione/ristrutturazione: 2006
Piano: Piano terra
Camere: 2
Arredato:
Garage: Singolo
Posti auto scoperti: 1 posto auto
Bagni: 2

Costi:
Prezzo € 105.225


Efficienza energetica:
Classe energetica: E
Riscaldamento: autonomo