home page > Annunci immobiliari in Italia > Veneto > Treviso > Paese > appartamenti in vendita > Scheda immobile

Appartamento in vendita a Paese

COMPILA IL MODULO SOTTOSTANTE PER RICEVERE MAGGIORI INFORMAZIONI







Invia la richiesta ad altre agenzie
Accetto il trattamento dei miei dati



Asteaffari.com

Viale g. E l. Olivi 38
31100 Treviso

04221781118    Riferimenti: Stefano Dalto

Paese
Prezzo: € 60.000
F
1
1
97
1



Descrizione:
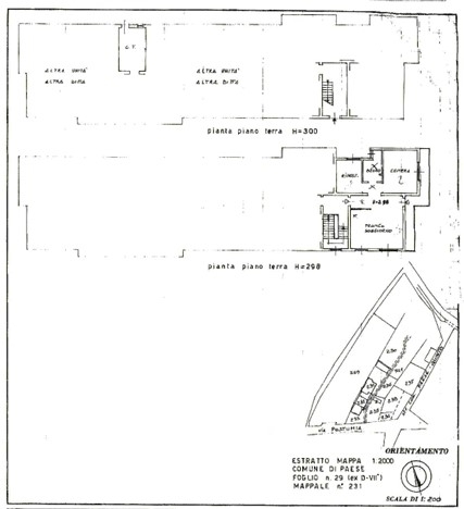
Rif. A.a.555-22vendita all'asta - appartamento al 1° piano con garage in data 2 febbraio 2026descrizione: trattasi di un appartamento ubicato al primo piano di un fabbricato condominiale a due piani sito nel comune di paese (tv). L'unità immobiliare, della superficie commerciale complessiva di mq. 97, è composta da: ingresso, cucina/pranzo/soggiorno, disimpegno, bagno, camera doppia, ripostiglio e terrazzino. Completano la proprietà un garage al piano terra e delle parti comuni condominiali. l'immobile viene venduto tramite asta giudiziaria, ed il prezzo indicato si riferisce al prezzo minimo accettato per la partecipazione all'asta.aste-affari fornisce un servizio di assistenza e consulenza tecnica, legale, fiscale e finanziaria su acquisti all'asta e affari immobiliari, al fine di rendere più facile e sicuro l'acquisto di un immobile proveniente dal mercato giudiziario oppure da occasioni presenti sul mercato immobiliare.analisi di fattibilità, tecnica, burocratica, finanziaria, legale, esame problematiche e vincoli, conteggio costi accessori ed occulti, assistenza in tutte le fasi della procedura fino alla consegna delle chiavi dell'immobile.l'acquisto può essere finanziato tramite mutuo, e, ove possibile anche in pre-asta tramite procedura di saldo-stralcio.prezzo minimo base asta : da euro 60.000,00per info aggiuntive, prenotazione visione, consulenza ed assistenza su asta :studio di consulenza : 'aste-affari.com'info: un debitore ? chiamaci ! abbiamo soluzioni personalizzate anche per te.




Caratteristiche immobile:
Codice inserzione: 1764562762
Rif. Annuncio: A.A. 555-22
Provincia: Treviso
Comune: Paese
Superficie (Mq) : 97 Mq.
Tipo immobile: Appartamento
Anno costruzione/ristrutturazione: 1969
Piano: 1
Camere: 1
Arredato:
Garage: Singolo
Tipologia giardino : Condominiale
Bagni: 1
Terrazze: 2

Costi:
Prezzo € 60.000


Efficienza energetica:
Classe energetica: F
Riscaldamento: centralizzato