home page > Annunci immobiliari in Italia > Veneto > Treviso > Ponzano Veneto > appartamenti in vendita > Scheda immobile

Appartamento in vendita a Ponzano Veneto

COMPILA IL MODULO SOTTOSTANTE PER RICEVERE MAGGIORI INFORMAZIONI







Invia la richiesta ad altre agenzie
Accetto il trattamento dei miei dati



Agenzia immobiliare ellero s.r.l.

Via t. Salsa 19
31100 Treviso

0422421880    Riferimenti: Agenzia Immobiliare Ellero

Ponzano Veneto
Prezzo: € 175.000
D
2
1
97
1



Descrizione:
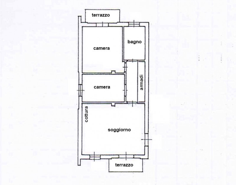
Ponzano veneto in piccola palazzina con scala di sole 4 unità, vendesi appartamento al primo piano (ultimo) di 78mq. Composto da soggiorno con angolo cottura e terrazzino, disimpegno zona notte con posto per ampio armadio, due camere da letto e bagno. E' presente attualmente una botola per accesso al sottotetto sopra l'appartamento con altezza max di 2.95 mt. Con predisposizione per finestra velux e impianto elettrico e riscaldamento per una futura ristrutturazione con ricavo di altri spazi. Al piano interrato cantina e spettacolare garage doppio di quasi 10 metri di lunghezza, finestrato, riscaldamento autonomo, aria condizionata, arredamento cucina compreso. Spese cpndominiali 38 euro mensili. Possizione tranquilla residenziale con villette e piccoli condomini, parco a verde e parcheggio comunale. Fermata autobus di città a 50metri. Tot,mq,. Comm.97mq. Certificazione energetica classe d epgl, nren 126,38 kwh/mq./anno. Prezzo euro 175.000 (rif.6982)




Caratteristiche immobile:
Codice inserzione: 1775097336
Rif. Annuncio: 6982
Provincia: Treviso
Comune: Ponzano Veneto
Zona: Paderno (capoluogo)  
Superficie (Mq) : 97 Mq.
Tipo immobile: Appartamento
Stato immobile: usato
Anno costruzione/ristrutturazione: 1998
Piano: 1
Camere: 2
Garage: Doppio
Bagni: 1
Terrazze: 2

Costi:
Prezzo € 175.000


Efficienza energetica:
Classe energetica: D
Indice di prestazione energetica (EPgl): 126.38 kWh/mq annui
Riscaldamento: autonomo