home page > Annunci immobiliari in Italia > Veneto > Treviso > Preganziol > appartamenti in vendita > Scheda immobile

Appartamento in vendita a Preganziol

COMPILA IL MODULO SOTTOSTANTE PER RICEVERE MAGGIORI INFORMAZIONI







Invia la richiesta ad altre agenzie
Accetto il trattamento dei miei dati



Zetaeffe di zennari oscar

Via roma 8
31057 Silea (TV)

0422363464    Riferimenti: Oscar Zennari

Preganziol
Prezzo: € 305.000
A4
3
2
140
98
1



Descrizione:
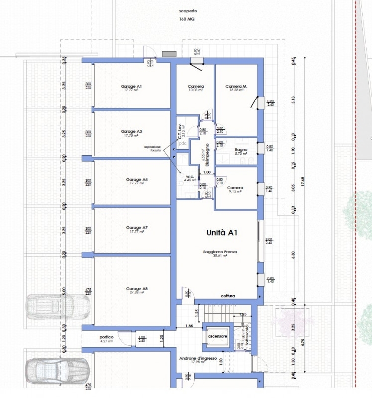
Preganziol: frazionein recente e piacevole zona residenziale, proponiamo in vendita appartamento tre camere al piano terra con giardino privato, di nuova costruzione, in classe a4. Consegna prevista per dicembre 2026l'immobile è cosù composto: ingresso su zona giorno con angolo cottura di c.a. 39 mq, con affaccio tramite ampie vetrate al giardino; un disimpegno ci accompagna alla zona notte dove troviamo la camera matrimoniale di 15 mq, con accesso diretto su giardino, due camere singole, due bagni e lavanderia/locale tecnico.ogni appartamento dispone di un garage e un posto auto.il residence è costruito utilizzando le migliori tecnologie ad oggi disponibili sul mercato in termini antisismici, di isolamento dell'involucro e di risparmio energetico ed è dotato di:- riscaldamento autonomo a pavimento- aria condizionata con due split per appartamento- impianto ventilazione meccanica controllata (vmc)- impianto fotovoltaico da 3 kwat per ciascuna unità abitativa- serramenti bianchi in pvc- tapparelle elettriche- cappotto esterno da 11 cm- pavimenti in legno su tutti gli ambienti ad eccezione dei bagnipossibilità di acquistare:- appartamenti al piano terra con giardino privato- appartamenti ai piani intermedi con terrazzi abitabili- appartamenti ultimo piano con terrazzi abitabili'riferimento vbpr1'




Caratteristiche immobile:
Codice inserzione: 1765165644
Rif. Annuncio: VBPR1
Provincia: Treviso
Comune: Preganziol
Zona: San Trovaso  
Superficie (Mq) : 140 Mq.
Tipo immobile: Appartamento
Stato immobile: nuovo
Anno costruzione/ristrutturazione: 2025
Piano: Piano terra
Camere: 3
Garage: Singolo
Posti auto scoperti: 1 posto auto
Bagni: 2 + lavanderia

Costi:
Prezzo € 305.000


Efficienza energetica:
Classe energetica: A4
Riscaldamento: autonomo a pavimento