home page > Annunci immobiliari in Italia > Veneto > Treviso > San Pietro di Feletto > appartamenti in vendita > Scheda immobile

Appartamento in vendita a San Pietro di Feletto

COMPILA IL MODULO SOTTOSTANTE PER RICEVERE MAGGIORI INFORMAZIONI







Invia la richiesta ad altre agenzie
Accetto il trattamento dei miei dati



Asteaffari.com

Viale g. E l. Olivi 38
31100 Treviso

04221781118    Riferimenti: Stefano Dalto

San Pietro di Feletto
Prezzo: € 27.900
F
1
1
98
1
1



Descrizione:
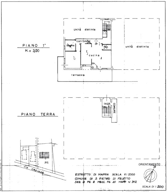
Rif. A.a.224-22vendita all'asta - porzione di plurifamiliare 1° pianodescrizione: trattasi di una porzione di fabbricato plurifamiliare sito in comune di san pietro di feletto (tv), in via crevada n. 14, della superficie commerciale totale di mq.98, posta al primo piano. L'appartamento ad uso abitazione risulta composto da ingresso, soggiorno, cucina, ripostiglio, bagno, corridoio, camera e terrazza. Completa la proprietà un'area scoperta di pertinenza di mq. 51.l'immobile viene venduto tramite asta giudiziaria, ed il prezzo indicato si riferisce al prezzo minimo accettato per la partecipazione all'asta.aste-affari fornisce un servizio di assistenza e consulenza tecnica, legale, fiscale e finanziaria su acquisti all'asta e affari immobiliari, al fine di rendere più facile e sicuro l'acquisto di un immobile proveniente dal mercato giudiziario oppure da occasioni presenti sul mercato immobiliare.analisi di fattibilità, tecnica, burocratica, finanziaria, legale, esame problematiche e vincoli, conteggio costi accessori ed occulti, assistenza in tutte le fasi della procedura fino alla consegna delle chiavi dell'immobile.l'acquisto può essere finanziato tramite mutuo, e, ove possibile anche in pre-asta tramite procedura di saldo-stralcio.prezzo minimo base asta : da euro 27.900,00per info aggiuntive, prenotazione visione, consulenza ed assistenza su asta :studio di consulenza : 'aste-affari.com'info: un debitore ? chiamaci ! abbiamo soluzioni personalizzate anche per te.




Caratteristiche immobile:
Codice inserzione: 1759114116
Rif. Annuncio: A.A. 224-22
Provincia: Treviso
Comune: San Pietro di Feletto
Superficie (Mq) : 98 Mq.
Tipo immobile: Appartamento
Stato immobile: usato
Anno costruzione/ristrutturazione: 1973
Piano: 1
Camere: 1
Arredato:
Posti auto scoperti: 1 posto auto
Bagni: 1
Terrazze: 1

Costi:
Prezzo € 27.900


Efficienza energetica:
Classe energetica: F
Riscaldamento: autonomo