home page > Annunci immobiliari in Italia > Veneto > Treviso > Castelcucco > Case e ville indipendenti in vendita > Scheda immobile

Case e ville indipendenti in vendita a Castelcucco

COMPILA IL MODULO SOTTOSTANTE PER RICEVERE MAGGIORI INFORMAZIONI







Invia la richiesta ad altre agenzie
Accetto il trattamento dei miei dati



Immobiliare asolo

Via g. Marconi, 131
31011 Asolo (TV)

3520641121    3520641121

Castelcucco
Prezzo: € 419.000
A4
3
3
190
Su più livelli
100 Mq



Descrizione:
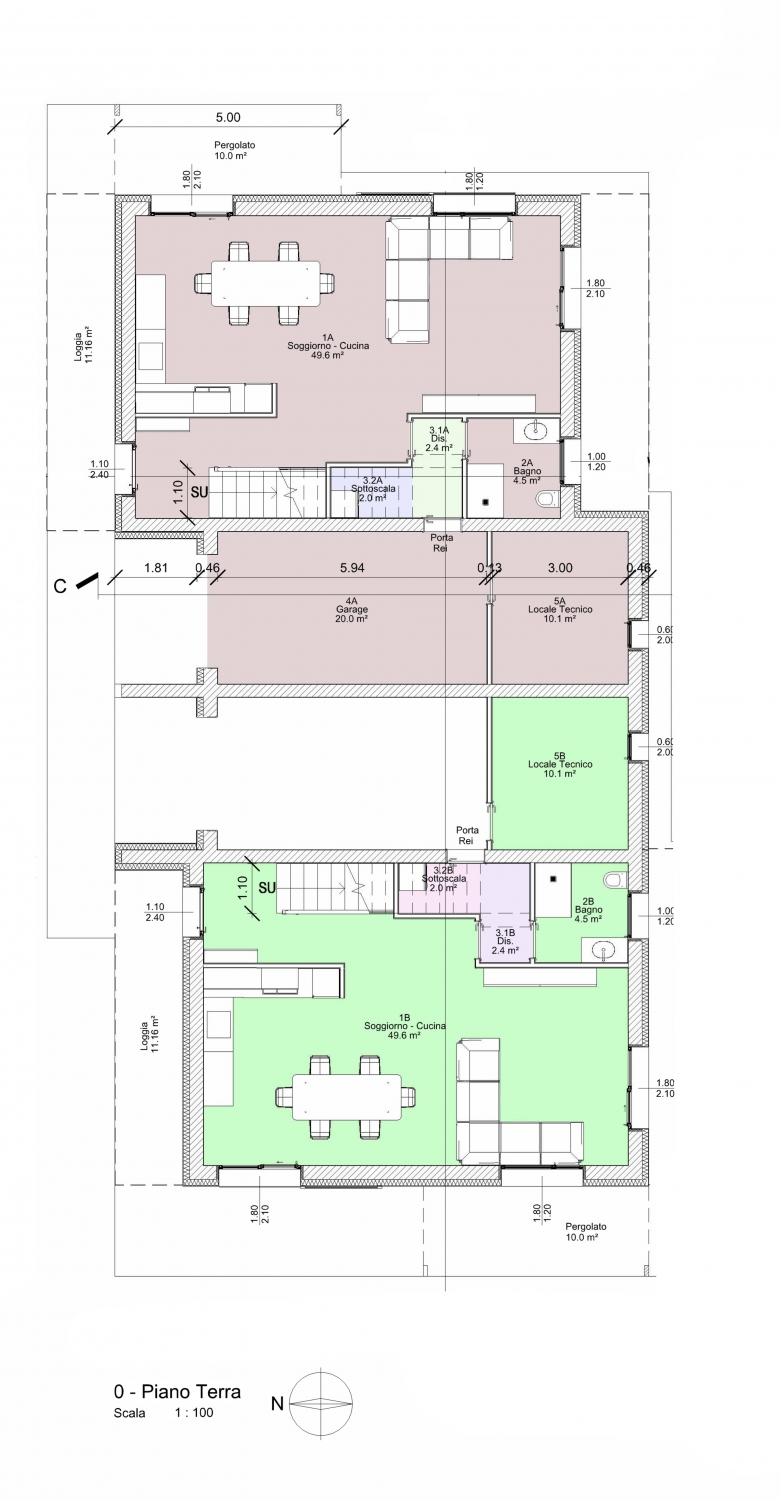
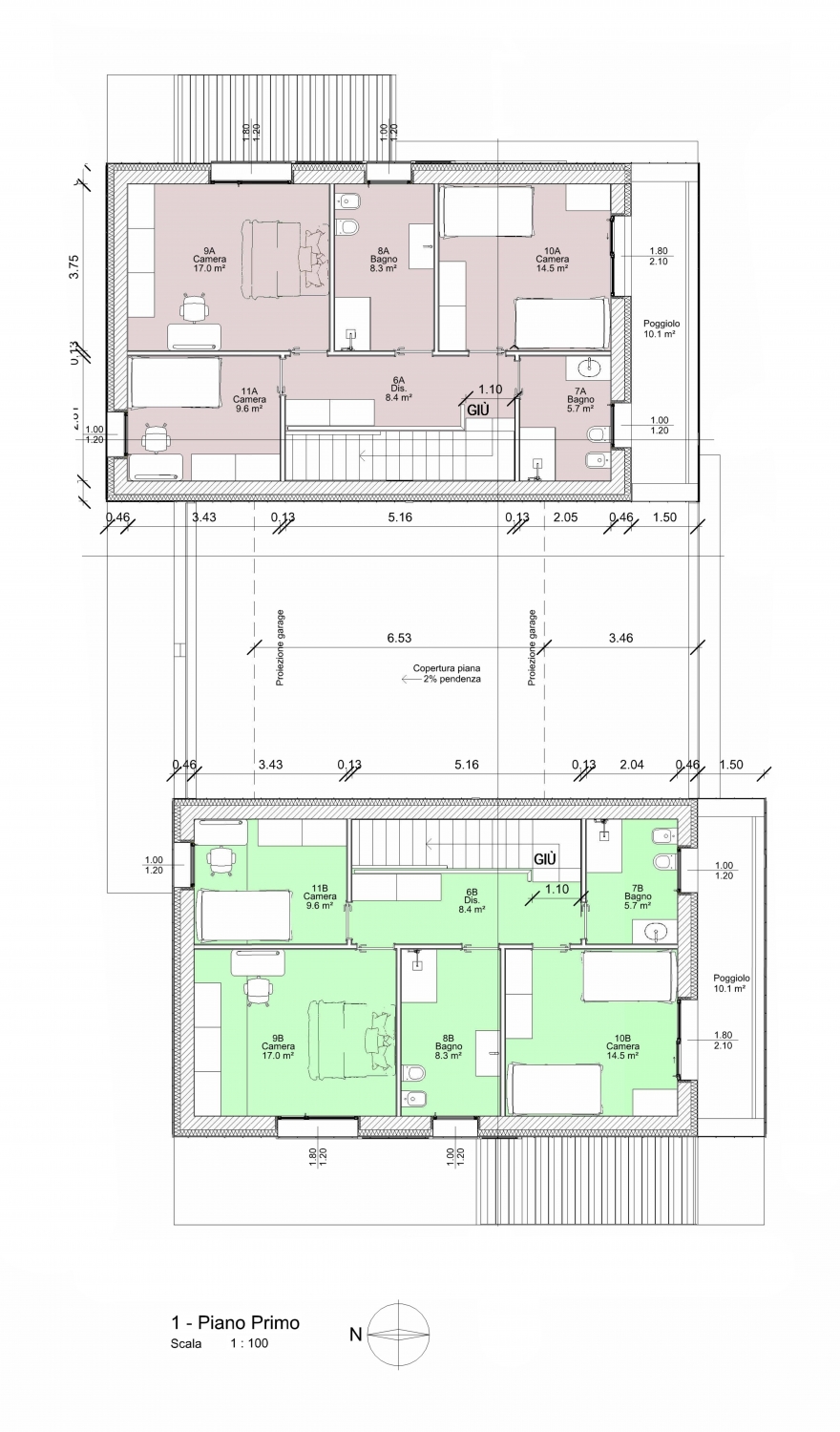
BIFAMILIARTE DI NUOVA COSTRUZIONE A4 CONSEGNA 2027 Castelcucco â€" Villa Bifamiliare di nuova costruzione Rif. A/10 - CASTELCUCCO, a due passi dal centro , un angolo di esclusivitĂ , immersi nel verde, con vista aperta sui Colli Asolani e Monte Grappa , in vendita villetta bifamiliare di nuova costruzione di mq 250 su due livelli ,piano terra composto da luminosa zona living soggiorno con vetrata scorrevole verso il porticato , pranzo-cucina, ripostiglio lavanderia , disimpegno, ingresso, giardino privato 160 mq, posti auto coperti. Zona notte con tre camere da letto , due bagni. Finiture personalizzabili di alto livello, riscaldamento e raffreddamento a pavimento in pompa di calore, sistemi di areazione meccanica e deumidificazione ambienti. Classe energetica garantita A4. Nel rispetto della privacy richiesta abbiamo inserito un indirizzo non corrispondente all’ubicazione dello immobile. Possiamo ,tuttavia , fornire ,precisazioni in merito. Vi invitiamo, pertanto, a scriverci all’indirizzo oppure a telefonarci allo Per visionare l'immobile o ricevere ulteriori informazioni contattaci: immobiliareASOLO ASOLO (TV)Tel. +

Servizi nei pressi dell'immobile:
Trasporti pubblici, supermercato, asilo nido, scuole, farmacia, bar, edicola, ristorante/trattoria, albergo, ufficio postale, banca, chiesa, altri edifici di culto, centro commerciale, palestra, centro medico, lavanderia automatica.




Caratteristiche immobile:
Codice inserzione: 1772561314
Rif. Annuncio: A/10
Provincia: Treviso
Comune: Castelcucco
Superficie (Mq) : 190 Mq.
Tipo immobile: Case e ville indipendenti
Stato immobile: in costruzione
Anno costruzione/ristrutturazione: 2026
Piano: Su più livelli
Camere: 3
Stato al rogito: Libero
Esposizione: SUD
Garage: Doppio
Posti auto scoperti: 2 posti auto
Posti auto coperti: 2 posti auto
Giardino : 100 Mq.
Tipologia giardino : Privato
Bagni: 3 + lavanderia
Terrazze: 1

Costi:
Prezzo € 419.000
Spese condominiali: € 0


Efficienza energetica:
Classe energetica: A4
Indice di prestazione energetica (EPgl): 175 kWh/mq annui
Riscaldamento: autonomo a pavimento
Tipologia riscaldamento: energia elettrica