home page > Annunci immobiliari in Italia > Veneto > Treviso > Codognè > Case e ville indipendenti in vendita > Scheda immobile

Case e ville indipendenti in vendita a Codognè

COMPILA IL MODULO SOTTOSTANTE PER RICEVERE MAGGIORI INFORMAZIONI







Invia la richiesta ad altre agenzie
Accetto il trattamento dei miei dati



Asteaffari.com

Viale g. E l. Olivi 38
31100 Treviso

04221781118    Riferimenti: Stefano Dalto

Codognè
Prezzo: € 120.750
D
3
3
234
1
1



Descrizione:
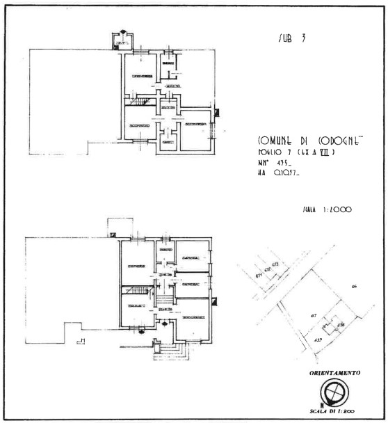
Rif. A.a.546-22vendita all'asta - bifamiliare su due livelli in data 28 gennaio 2026descrizione: trattasi di un'unità immobiliare ad uso civile abitazione bifamiliare a due piani, con area scoperta ed alcuni manufatti, della superficie commerciale complessiva di mq.234. L'abitazione è costituita al piano terra da garage, angolo cottura, disimpegno, bagno, w.c., magazzino-lavanderia, taverna, camera, ripostiglio, sgombero; al piano primo da ingresso, cucina, scala di accesso al piano terra, soggiorno, disimpegno, bagno, n.3 camere e terrazza. Completano la proprietà un'area scoperta di pertinenza adibita a giardino ed un laboratorio su corpo staccato costituito da un prefabbricato in lamiera in parte verniciata posto nella fascia sud dell'area esterna, articolato in un vano unico con due portelloni forniti di porte di accesso e finestratura a nastro posta in alto e finestre laterali alle porte di ingresso.prezzo minimo: 120.750,00 eurol'immobile viene venduto tramite asta giudiziaria, ed il prezzo indicato si riferisce al prezzo minimo accettato per la partecipazione all'asta.aste-affari fornisce un servizio di assistenza e consulenza tecnica, legale, fiscale e finanziaria su acquisti all'asta e affari immobiliari, al fine di rendere più facile e sicuro l'acquisto di un immobile proveniente dal mercato giudiziario oppure da occasioni presenti sul mercato immobiliare.analisi di fattibilità, tecnica, burocratica, finanziaria, legale, esame problematiche e vincoli, conteggio costi accessori ed occulti, assistenza in tutte le fasi della procedura fino alla consegna delle chiavi dell'immobile.l'acquisto può essere finanziato tramite mutuo, e, ove possibile anche in pre-asta tramite procedura di saldo-stralcio.per info aggiuntive, prenotazione visione, consulenza ed assistenza su asta :studio di consulenza : 'aste-affari.com'info: un debitore ? chiamaci ! abbiamo soluzioni personalizzate anche per te.




Caratteristiche immobile:
Codice inserzione: 1763697461
Rif. Annuncio: A.A. 546-22
Provincia: Treviso
Comune: Codognè
Zona: Cimetta  
Superficie (Mq) : 234 Mq.
Tipo immobile: Case e ville indipendenti
Stato immobile: usato
Anno costruzione/ristrutturazione: 1976
Piano: 1
Camere: 3
Arredato:
Garage: Singolo
Posti auto scoperti: 1 posto auto
Bagni: 3 + lavanderia
Terrazze: 1

Costi:
Prezzo € 120.750


Efficienza energetica:
Classe energetica: D
Riscaldamento: autonomo