home page > Annunci immobiliari in Italia > Veneto > Treviso > Nervesa della Battaglia > Case e ville a schiera in vendita > Scheda immobile

Case e ville a schiera in vendita a Nervesa della Battaglia

COMPILA IL MODULO SOTTOSTANTE PER RICEVERE MAGGIORI INFORMAZIONI







Invia la richiesta ad altre agenzie
Accetto il trattamento dei miei dati



Asteaffari.com

Viale g. E l. Olivi 38
31100 Treviso

04221781118    Riferimenti: Stefano Dalto

Nervesa della Battaglia
Prezzo: € 59.300
F
2
1
80
1
1



Descrizione:
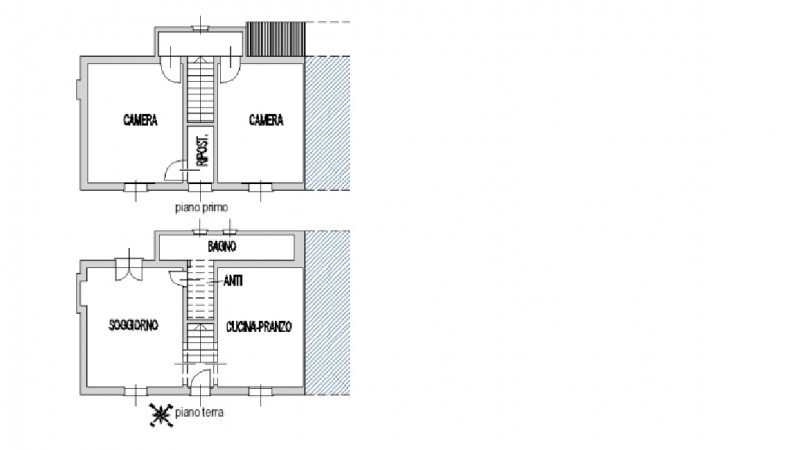
Aa tv 26-4vendesi all'asta porzione di casa di testa con orto in data 11 marzo 2026a 1 km da piazza la piave centro del paese, nei pressi dell'argine del fiume piave, porzione di bifamiliare, alloggio quadrilocale, posto al piano terra e al piano primo con area scoperta / orto di circa 287 mq. , inserito in un tranquillo quartiere residenziale, su strada non trafficata, fuori dal centro urbano e non lontana servizi primari. Cucina, soggiorno , 2 camere matrimoniali e bagno .n.b. : l'immobile puo' essere acquistato solo come prima casa prezzo minimo: 59.300 eurol'immobile viene venduto tramite asta , la vendita è riservata alle sole persone che possono usufruire delle agevolazioni prima casa , ed il prezzo indicato si riferisce al prezzo minimo accettato per la partecipazione all'asta solo per chi ha diritto ad agevolazione 'prima casa'.aste-affari fornisce un servizio di assistenza e consulenza tecnica, legale, fiscale e finanziaria su acquisti all'asta e affari immobiliari, al fine di rendere più facile e sicuro l'acquisto di un immobile proveniente dal mercato giudiziario oppure da occasioni presenti sul mercato immobiliare.analisi di fattibilità, tecnica, burocratica, finanziaria, legale, esame problematiche e vincoli, conteggio costi accessori ed occulti, assistenza in tutte le fasi della procedura fino alla consegna delle chiavi dell'immobile.l'acquisto può essere finanziato tramite mutuo, e, ove possibile anche in pre-asta tramite procedura di saldo-stralcio.per info aggiuntive, prenotazione visione, consulenza ed assistenza su asta :studio di consulenza : 'aste-affari.com'info: un debitore ? chiamaci ! abbiamo soluzioni personalizzate anche per te.




Caratteristiche immobile:
Codice inserzione: 1769763501
Rif. Annuncio: AA TV 26-4
Provincia: Treviso
Comune: Nervesa della Battaglia
Superficie (Mq) : 80 Mq.
Tipo immobile: Case e ville a schiera
Stato immobile: usato da riattare
Anno costruzione/ristrutturazione: 1939
Piano: 1
Camere: 2
Posti auto scoperti: 1 posto auto
Bagni: 1

Costi:
Prezzo € 59.300


Efficienza energetica:
Classe energetica: F
Riscaldamento: autonomo