home page > Annunci immobiliari in Italia > Veneto > Treviso > Quinto di Treviso > Case e ville a schiera in vendita > Scheda immobile

Case e ville a schiera in vendita a Quinto di Treviso

COMPILA IL MODULO SOTTOSTANTE PER RICEVERE MAGGIORI INFORMAZIONI







Invia la richiesta ad altre agenzie
Accetto il trattamento dei miei dati



Roveda immobiliare snc

Piazza leonardo da vinci 5
31030 Casier (TV)

0422.1916721    Riferimenti: Roveda Immobiliare

Quinto di Treviso
Prezzo: € 375.000
A4
3
2
138
1
1



Descrizione:
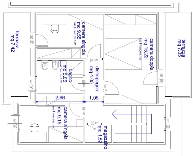
Quinto di trevisoriferimento: qt3l' agenzia roveda immobiliare ha il piacere di presentarvi a quinto di treviso, in un contesto esclusivo e riservato, proponiamo 8 villette a schiera di nuova costruzione, inserite all'interno di una strada privata ad uso esclusivo dei residenti, in una zona residenziale immersa nel verde, caratterizzata da sole case singole.le abitazioni si sviluppano su due livelli fuori terra e sono cosù composte:piano terra: ampia zona giorno open space, bagno di servizio e garage con accesso diretto all'abitazione;piano primo: tre camere da letto, secondo bagno finestrato.le unità saranno dotate di pompa di calore per riscaldamento e produzione di acqua calda sanitaria, riscaldamento a pavimento e impianto fotovoltaico autonomo per ciascuna villetta da 6 kw, a garanzia di elevata efficienza energetica e ridotti consumi.la posizione è strategica, a pochi passi dalla greenway dell'ostiglia, ideale per chi ama passeggiate e attività all'aria aperta. Quinto di treviso offre inoltre numerosi punti di interesse storico e naturalistico, tra cui oasi, ville venete e percorsi lungo il sile, rendendolo un luogo perfetto per vivere in armonia tra natura e comfort.soluzioni ideali per famiglie che cercano indipendenza, qualità costruttiva e tranquillità, senza rinunciare alla vicinanza ai principali servizi.contattaci per maggiori informazioni, planimetrie e visite in cantiere.




Caratteristiche immobile:
Codice inserzione: 1772509684
Rif. Annuncio: QT3
Provincia: Treviso
Comune: Quinto di Treviso
Superficie (Mq) : 138 Mq.
Tipo immobile: Case e ville a schiera
Stato immobile: nuovo
Anno costruzione/ristrutturazione: 2026
Piano: 1
Camere: 3
Garage: Singolo
Posti auto scoperti: 1 posto auto
Bagni: 2
Terrazze: 2

Costi:
Prezzo € 375.000


Efficienza energetica:
Classe energetica: A4
Riscaldamento: autonomo a pavimento