home page > Annunci immobiliari in Italia > Veneto > Treviso > Zero Branco > Case e ville a schiera in vendita > Scheda immobile

Case e ville a schiera in vendita a Zero Branco

COMPILA IL MODULO SOTTOSTANTE PER RICEVERE MAGGIORI INFORMAZIONI







Invia la richiesta ad altre agenzie
Accetto il trattamento dei miei dati



Agenzia immobiliare immobilzero

Piazza umberto i, 23
31059 Zero Branco (TV)

0422.489040

Zero Branco
Prezzo: € 355.000
3
2
110
Piano terra



Descrizione:
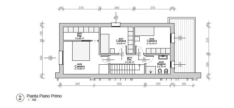
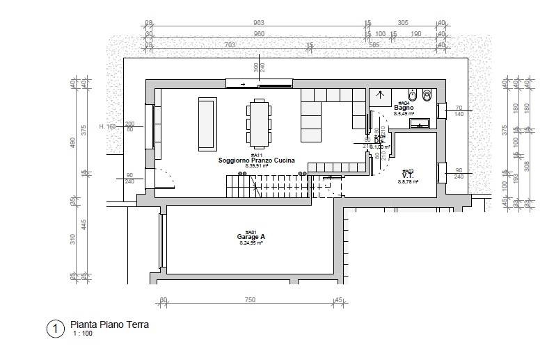
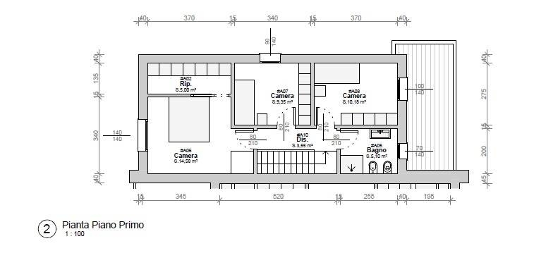
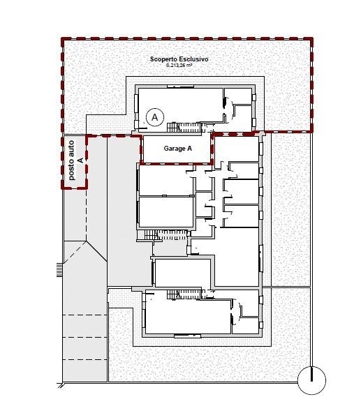
Schiera di testa di prossima costruzione, a pochi metri dal centro di zero branco. Questa proprietà, caratterizzata da un'ottima classe energetica a4, offre un perfetto equilibrio tra comfort e modernità.l'immobile si sviluppa su due livelli, al piano terra troviamo una zona soggiorno con angolo cottura di circa 40mq, un bagno un vano tecnico e un ampio garage comunicante di circa 24mq, salendo al piano primo un ampio disimpegno ci conduce nella zona notte composta da tre camere da letto tra cui una matrimoniale con cabina armadio e un bagno ben rifinito. all'esterno, un ampio giardino di circa 200 mq offre uno spazio ideale per godere di momenti di relax all'aria aperta, organizzare cene con amici o semplicemente per far giocare i bambini in un ambiente sicuro e riservato.questa schiera rappresenta un'opportunità unica per chi desidera vivere in una zona tranquilla ma ben collegata, con tutti i servizi a portata di mano. possibilità di personalizzare le finiture oltra alle già ottime finiture previste nel capitolato. Classe energetica: a4




Caratteristiche immobile:
Codice inserzione: 1765421457
Rif. Annuncio: P294
Provincia: Treviso
Comune: Zero Branco
Superficie (Mq) : 110 Mq.
Tipo immobile: Case e ville a schiera
Stato immobile: nuovo
Piano: Piano terra
Camere: 3
Garage: Singolo
Bagni: 2

Costi:
Prezzo € 355.000


Efficienza energetica:
Riscaldamento: autonomo