home page > Annunci immobiliari in Italia > Campania > Napoli > Qualiano > Negozi uffici capannoni in vendita > Scheda immobile

Negozi uffici capannoni in vendita a Qualiano

COMPILA IL MODULO SOTTOSTANTE PER RICEVERE MAGGIORI INFORMAZIONI







Invia la richiesta ad altre agenzie
Accetto il trattamento dei miei dati



Andromeda s.r.l. Unipersonale

Via lipari, 6 - casoria (na)
80026 Casoria (NA)

081.5775167    3357751666    Riferimenti: katia

Qualiano
Prezzo: € 4.400.000
B
3
3060



Descrizione:
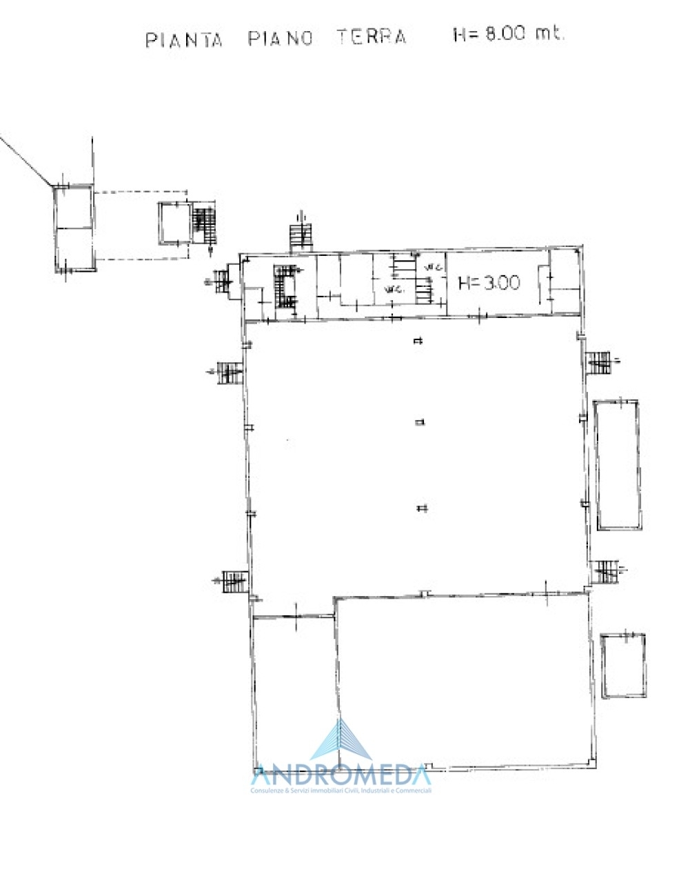
giugliano in campania zona asi -proponiamo in vendita uncapannone industrialedi complessivim 3.060, attualmente in fase di ristrutturazione, cosù composta: area di lavorazionedi circam 2.150, con altezza interna di mt 8,00; area servizidi circam 335, comprendente mensa, bagni, spogliatoi, servizi, locali tecnici e infermeria, con altezza interna di mt 3,00; uffici direzionalial primo piano di circam 335, con altezza di mt 3,00; depositodi circam 70; depositodi circam 35; appartamento del custodedi circam 135.completa la proprietà unavasta area esternadi circam 6.500, ideale per la manovra di mezzi pesanti, di cui circam 1.400coperti da tettoia, perfetti come deposito scoperto o area logistica aggiuntiva.l'immobile verrà consegnato completamente rifinito con: pavimentazione industriale, impianto elettrico base, gruppo bagni con spogliatoi, impianto antincendio e area esterna asfaltatala posizione èstrategica, facilmente raggiungibile e ben collegata alle principali arterie stradali, rendendo il complesso particolarmente adatto a realtà produttive e logistiche.consegna prevista: giugno 2026.spese condominiali trimestrali: € 930,00.richiesta: € 4.400.000,00quanto vale il tuo immobile? rivolgiti per una valutazione gratuita alla nostra agenzia andromeda immobiliare s.r.l. Metteremo a tua disposizione un team di professionisti esperti, con esperienza pluriennale in intermediazione ed affari immobiliari che possiedono requisiti ed adeguate conoscenze che garantiscono un prezioso aiuto sia per gli acquirenti che per i venditori in tutte le fasi di una compravendita immobiliare. Per qualsiasi informazione e/o per fissare un appuntamento senza impegno, contattare il nostro ufficio andromeda srl via lipari n° 6 casoria - al numero di telefono oppure all'indirizzo mail: la nostra agenzia, è possibile su richiesta, grazie ai nostri professionisti ricevere una consulenza gratuita ed accedere ad un'ampia gamma di prodotti creditizi e assicurativi come: mutui prima, seconda casa e ristrutturazione; sostituzione o surroga del mutuo; cessioni del quinto dello stipendio o pensione; consolidamento debiti; prodotti assicurativi per la famiglia, ramo danni e vita. Seguici anche su facebook o su instagram, clicca 'mi piace' sulla pagina andromeda_immobiliare




Caratteristiche immobile:
Codice inserzione: 1769415705
Rif. Annuncio: 2096
Provincia: Napoli
Comune: Qualiano
Superficie (Mq) : 3060 Mq.
Tipo immobile: Negozi uffici capannoni
Bagni: 3

Costi:
Prezzo € 4.400.000


Efficienza energetica:
Classe energetica: B
Indice di prestazione energetica (EPgl): 100 kWh/mc annui