home page > Annunci immobiliari in Italia > Abruzzo > Chieti > Bucchianico > Case e ville indipendenti in vendita > Scheda immobile

Case e ville indipendenti in vendita a Bucchianico

COMPILA IL MODULO SOTTOSTANTE PER RICEVERE MAGGIORI INFORMAZIONI







Invia la richiesta ad altre agenzie
Accetto il trattamento dei miei dati



Case&case abruzzo srl

Via picena 179
66100 Chieti

0871396451    3420414004

Bucchianico
Prezzo: € 280.000
300



Descrizione:
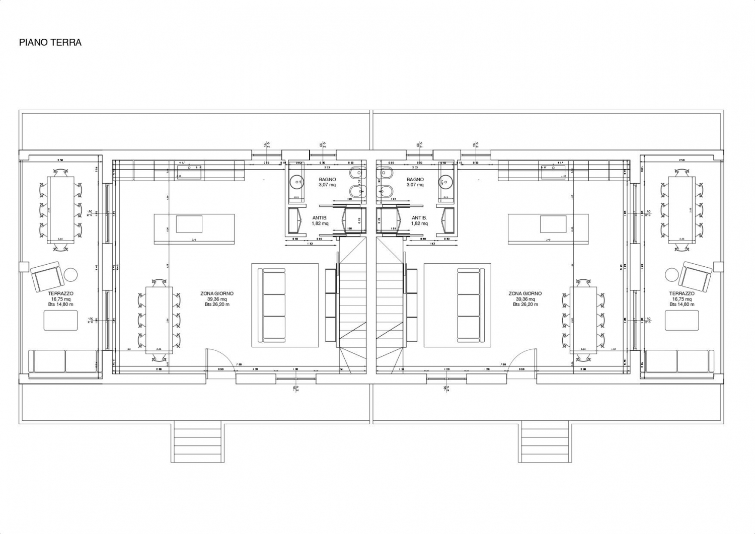
Villa bifamiliare di nuova costruzione classe a a bucchianicoa bucchianico, in tranquilla zona residenziale ben collegata, proponiamo in vendita prestigiose ville bifamiliari di nuova costruzione, in classe energetica a.il complesso residenziale è quasi ultimato e già valorizzato dalla presenza di cinque villette a schiera di fronte, tutte vendute, a conferma della qualità e dell'interesse per la zona.ogni unità si sviluppa su una superficie di circa 240 mq, arricchita da balconi, terrazzi e giardino esclusivo, ideali per vivere appieno gli spazi esterni.le ville offrono la possibilità di personalizzare le finiture, permettendo di creare ambienti su misura secondo i propri gusti e esigenze. è inoltre disponibile l'opzione di acquistare un progetto completo comprensivo di arredamento, per una soluzione chiavi in mano, pronta da vivere.la posizione, riservata ma strategica, garantisce comfort, funzionalità e facile accesso alle principali vie di comunicazione.una soluzione perfetta per chi è alla ricerca di qualità, efficienza energetica e tranquillità.




Caratteristiche immobile:
Codice inserzione: 1736335165
Rif. Annuncio: 249
Provincia: Chieti
Comune: Bucchianico
Superficie (Mq) : 300 Mq.
Tipo immobile: Case e ville indipendenti
Stato al rogito: Libero
Tipologia giardino : Privato

Costi:
Prezzo € 280.000


Efficienza energetica:
Riscaldamento: autonomo