home page > Annunci immobiliari in Italia > Abruzzo > Chieti > Casalbordino > Negozi uffici capannoni in vendita > Scheda immobile

Negozi uffici capannoni in vendita a Casalbordino

COMPILA IL MODULO SOTTOSTANTE PER RICEVERE MAGGIORI INFORMAZIONI







Invia la richiesta ad altre agenzie
Accetto il trattamento dei miei dati



Vasto

Corso garibaldi 45
66054 Vasto (CH)

0873.365974

Casalbordino
Prezzo: € 399.000
1115



Descrizione:
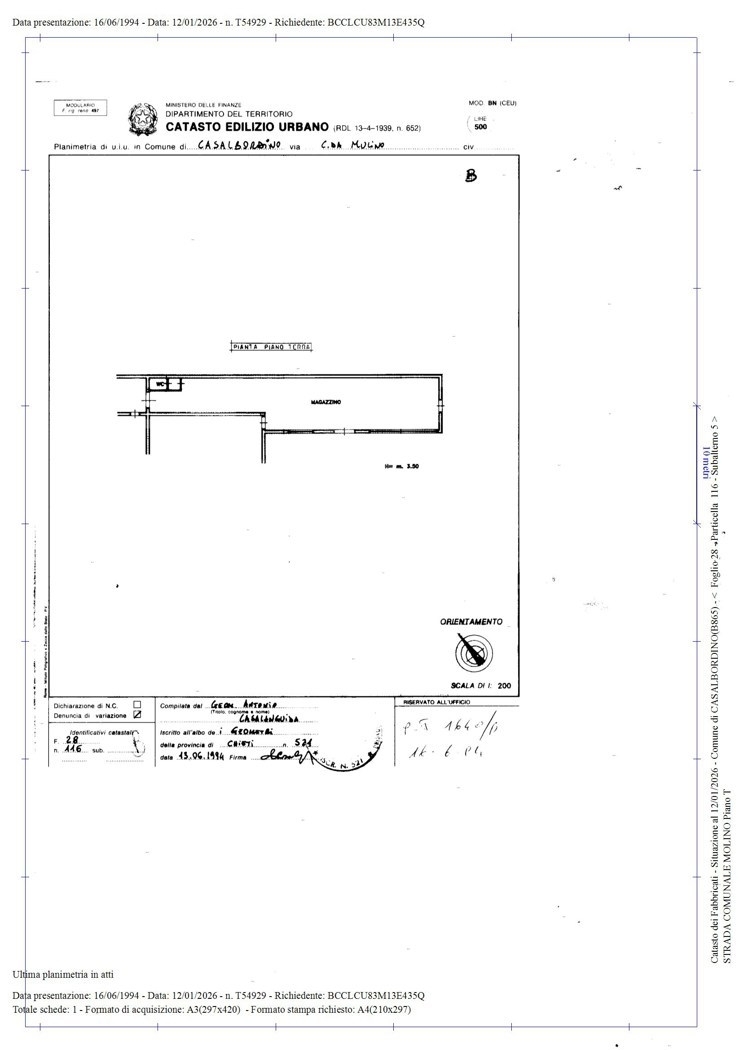
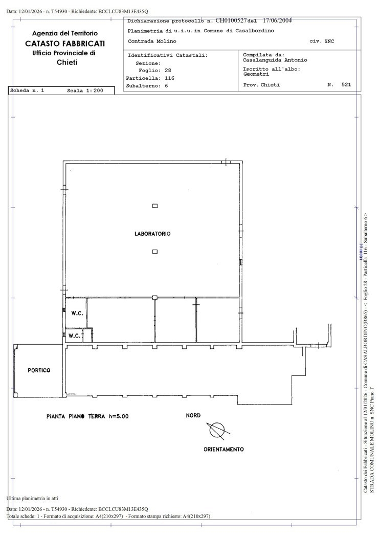
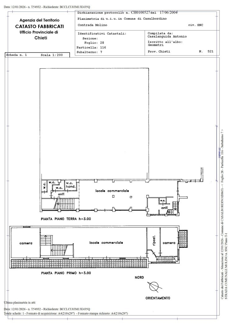
Strategico complesso industriale - artigianale a casalbordino ? a 500m dal casello a14 vasto norddescrizione: proponiamo in vendita un'opportunità immobiliare strategica per aziende che ricercano massima visibilità e logistica d?eccellenza. Situato in posizione privilegiata a casalbordino, a pochissima distanza dal casello autostradale a14 (vasto nord/casalbordino), il complesso si sviluppa su un'area totale di grande respiro.la proprietà è cosù composta:corpo principale (capannone): 600 mq di area produttiva ottimamente distribuita.locali magazzino: ulteriori 280 mq ideali per stoccaggio merci o lavorazioni accessorie.area direzionale ed espositiva: palazzina uffici di 235 mq totali, comprensiva di un luminoso locale esposizione/showroom per accogliere clienti e partner.area esterna: ampio piazzale di 3000 mq che garantisce facilità di manovra per mezzi pesanti, ampi parcheggi e possibilità di stoccaggio all?aperto.punti di forza:vicinanza immediata allo snodo autostradale.versatilità degli spazi (produzione + magazzino + showroom).ampia area esterna recintata.ideale per logistica, piccola industria o centri distribuzione. Contattaci per una visita e per scoprire il potenziale del tuo prossimo quartier generale.




Caratteristiche immobile:
Codice inserzione: 1768523864
Rif. Annuncio: IM20261VCG
Provincia: Chieti
Comune: Casalbordino
Superficie (Mq) : 1115 Mq.
Tipo immobile: Negozi uffici capannoni

Costi:
Prezzo € 399.000


Efficienza energetica: