home page > Annunci immobiliari in Italia > Abruzzo > Chieti > Giuliano Teatino > Negozi uffici capannoni in vendita > Scheda immobile

Negozi uffici capannoni in vendita a Giuliano Teatino

COMPILA IL MODULO SOTTOSTANTE PER RICEVERE MAGGIORI INFORMAZIONI







Invia la richiesta ad altre agenzie
Accetto il trattamento dei miei dati



Quimmo agency

Via galileo galilei 6
48018 Faenza (RA)

0299944698

Giuliano Teatino
Prezzo: € 737.000
G
3062



Descrizione:
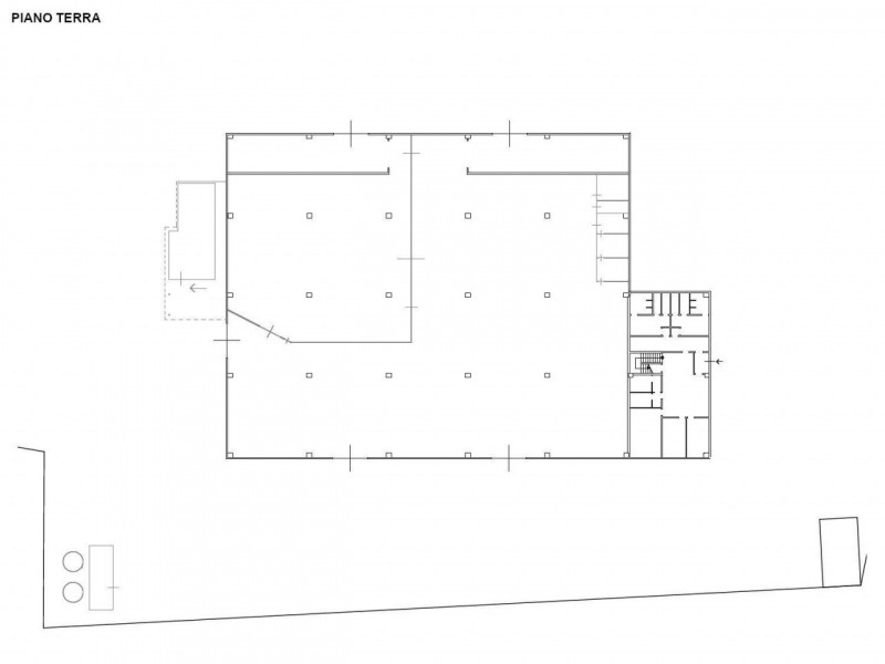
Vendesi capannone con area di pertinenza sito a giuliano teatino (ch), via arenella 1. L'immobile è ubicato in zona agricola, a circa 800 mt dal paese, distante dall'autostrada circa 15 km. Trattasi di fabbricato industriale composto da un unico corpo di fabbrica che si sviluppa su due livelli. Al piano terra vi è l'area produttiva con annessi servizi ed uffici. Il piano primo, collegato da scala interna, è caratterizzato da ulteriori uffici e servizi. L'area di pertinenza esterna è ubicata a confine di un'altra proprietà con la quale condivide l'ingresso principale carrabile. Immobile libero. Nonostante lo stato manutentivo assente, le condizioni risultano mediocri. Beni mobili esclusi dalla vendita. E' presente all'interno materiale di vario genere.per maggiori dettagli consultare i documenti allegati.classe energetica 'g'superficie commerciale: 3062 mqpiena proprietà di:capannone (cf): foglio 9 particella 4372 subalterno 2 (ex sub 1) cat d/8




Caratteristiche immobile:
Codice inserzione: 1757386879
Rif. Annuncio: 14695
Provincia: Chieti
Comune: Giuliano Teatino
Superficie (Mq) : 3062 Mq.
Tipo immobile: Negozi uffici capannoni
Stato immobile: usato
Anno costruzione/ristrutturazione: 2006

Costi:
Prezzo € 737.000


Efficienza energetica:
Classe energetica: G
Riscaldamento: autonomo