home page > Annunci immobiliari in Italia > Abruzzo > Chieti > San Vito Chietino > Negozi uffici capannoni in vendita > Scheda immobile

Negozi uffici capannoni in vendita a San Vito Chietino

COMPILA IL MODULO SOTTOSTANTE PER RICEVERE MAGGIORI INFORMAZIONI







Invia la richiesta ad altre agenzie
Accetto il trattamento dei miei dati



Studio antonio tasso srl

Corso trento e trieste,85
66034 Lanciano (CH)

0872714393    0872714393    335427961    Riferimenti: antonio tasso

San Vito Chietino
Prezzo: € 210.000
G
2
250
Ultimo piano



Descrizione:
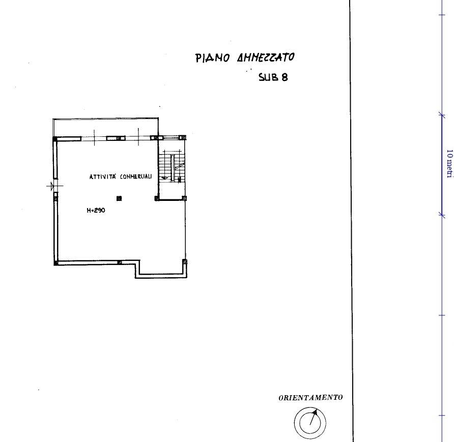
Nel cuore della costa dei trabocchi, in posizione altamente strategica e a forte passaggio pedonale e turistico, proponiamo in vendita immobile a destinazione commerciale (c/1) attualmente locato e adibito a ristorazione, situato in via frentana a san vito marina (ch), a pochi passi dal mare, dalla stazione ferroviaria e dai principali servizi (farmacia, attività commerciali, flussi turistici consolidati).consistenza immobile principale (piano terra c/1 | circa 113 mq):- due ampie sale ristorante- cucina- due servizi igienici con antibagno (a norma per attività)- locale tecnicostato attuale: immobile locato con attività di ristorazione avviata (vendita mura, non attività) contratto in scadenza a fine anno, elemento strategico per subentro diretto o riconversione.piano seminterrato (s1 categoria f/3 | 137 mq):- locale allo stato grezzo- accesso indipendente dalla parte retrostante- elevato potenziale di sviluppo (deposito, ampliamento attività, laboratorio, ulteriore sala o cambio destinazione previa verifica tecnica)plus strategici e leva economica:- location premium sulla costa dei trabocchi: area ad altissima attrattività turistica stagionale e crescente destagionalizzazione- inserimento in contesto consolidato di attività ristorative e commerciali- forte visibilità e passaggio (pedonale e veicolare)- prossimità a stazione ferroviaria: bacino clienti ampliato (turismo e flussi giornalieri)- vendita delle mura con attività già presente: possibilità di mantenere reddito da locazione oppure sviluppare attività diretta- doppio livello con superficie accessoria: leva per incremento fatturato (ampliamento coperti, servizi aggiuntivi, storage operativo)soluzione ideale per:- operatori della ristorazione che vogliono inserirsi in una piazza già performante- investitori orientati a rendita + rivalutazione in area turistica in espansione- progetti di format food innovativi o sviluppo multi-livelloimmobile commerciale con elevata redditività potenziale, grazie a posizione, distribuzione interna e possibilità di sviluppo. Opportunità concreta per capitalizzare su una delle aree più dinamiche del litorale abruzzese. Classe energetica: g epi: 175 kwh/m3 anno




Caratteristiche immobile:
Codice inserzione: 1777260674
Rif. Annuncio: 9473UL95010
Provincia: Chieti
Comune: San Vito Chietino
Superficie (Mq) : 250 Mq.
Tipo immobile: Negozi uffici capannoni
Stato immobile: usato
Piano: Ultimo piano
Bagni: 2

Costi:
Prezzo € 210.000


Efficienza energetica:
Classe energetica: G
Indice di prestazione energetica (EPgl): 175 kWh/mc annui
Riscaldamento: autonomo