home page > Annunci immobiliari in Italia > Abruzzo > Pescara > Montesilvano > Negozi uffici capannoni in vendita > Scheda immobile

Negozi uffici capannoni in vendita a Montesilvano

COMPILA IL MODULO SOTTOSTANTE PER RICEVERE MAGGIORI INFORMAZIONI







Invia la richiesta ad altre agenzie
Accetto il trattamento dei miei dati



Property management consulting srl

Via properzio 4
65121 Pescara

0852056541    Riferimenti: amministrazione

Montesilvano
Prezzo: € 266.000
140
Piano terra



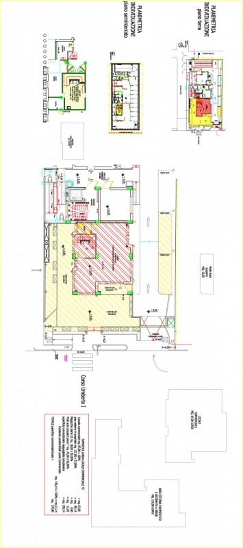
Descrizione:
Locale commerciale in vendita nel cuore pulsante della città! situato al piano terra, questo spazio offre un'opportunità unica per chi desidera avviare un'attività in una zona di alto traffico veicolare e pedonale. Con una superficie di 140 m, il locale è un ambiente unico, perfetto per attività commerciali, uffici o showroom. Le quattro ampie vetrine fronte strada garantiscono massima visibilità, mentre l'area esterna di proprietà aggiunge ulteriore valore. Completano la proprietà un bagno e un magazzino, rendendo questo spazio funzionale e versatile. Costruito nel 2024, l'immobile è angolare e gode di una posizione strategica che catturerà l'attenzione di ogni passante. Non perdere questa occasione irripetibile!classe energetica a.




Caratteristiche immobile:
Codice inserzione: 1775788834
Rif. Annuncio: CO151
Provincia: Pescara
Comune: Montesilvano
Superficie (Mq) : 140 Mq.
Tipo immobile: Negozi uffici capannoni
Piano: Piano terra

Costi:
Prezzo € 266.000


Efficienza energetica: