Descrizione:
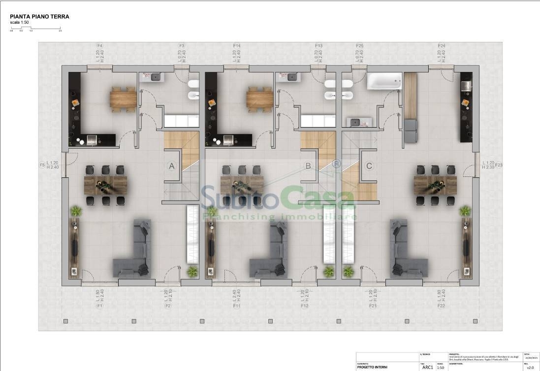
Villette a schiera di nuova costruzione - villa olivetiproponiamo in vendita villette a schiera di nuova costruzione, di circa 160 mq, caratterizzate da una struttura innovativa in legno e pensate per garantire altissime prestazioni energetiche. Le unità residenziali si sviluppano su due livelli e sono dotate di oltre 200 mq di giardino privato. La costruzione è attualmente in corso e la consegna è prevista entro dicembre 2025.caratteristiche principali:prestazioni energetiche: le villette sono progettate per raggiungere la classe energetica nzeb (near zero energy building), un livello superiore alla classe 'a4', per un'abitazione altamente efficiente dal punto di vista energetico e sostenibile.ubicazione: situate nel cuore di villa oliveti, in una zona tranquilla e ben servita, queste residenze offrono il massimo del comfort in un contesto esclusivo.distribuzione degli spazi:piano terra: l'ingresso privato conduce alla zona esterna con posto auto e un ampio giardino privato di oltre 200 mq. All'interno, la spaziosa zona giorno di oltre 42 mq accoglie una cucina abitabile e un bagno. Tutti gli ambienti godono di accesso diretto all'area esterna, creando continuità tra gli spazi interni ed esterni.piano superiore: al secondo livello troviamo 3 ampie camere matrimoniali, due bagni ampi e moderni, un comodo ripostiglio oltre a 3 balconi.materiali e rifiniture di alta qualità: le villette saranno realizzate con materiali di pregio e una vasta scelta di finiture personalizzabili, dando la possibilità ai futuri acquirenti di scegliere tra diverse opzioni per personalizzare ogni ambiente, anche nella disposizione interna dei locali.tecnologie all'avanguardia:sistema vcm (ventilazione controllata meccanica) per un'aria sempre sana e salubre.riscaldamento a pavimento e climatizzazione canalizzata per il massimo del comfort.purificazione dell'aria e produzione di acqua calda sanitaria ad alta efficienza.impianto fotovoltaico autonomo da 6 kw con batteria di accumulo da 10kw, che garantisce un risparmio energetico significativo.infissi in legno di ultima generazione, persiane in alluminio, zanzariere e predisposizione per sistema di allarme.tutte queste tecnologie sono già incluse nel capitolato.tecnologia no-gas: le villette sono dotate di un impianto completamente privo di gas, per una maggiore sicurezza e un impatto ambientale ridotto.non perdere l'opportunità di acquistare una casa all'avanguardia, pensata per garantire benessere, comfort e risparmio energetico.contattaci per maggiori informazioni, per visionare i materiali disponibili o per organizzare una visita in cantiere. Saremo lieti di assisterti nella scelta della tua nuova casa.